Коммерция 8 м²
Краснодар, Западный внутригородской округ, мкр. Фестивальный, ул. Михаила Власова, 92
60 000 000 ₽
7 500 000 ₽/м²
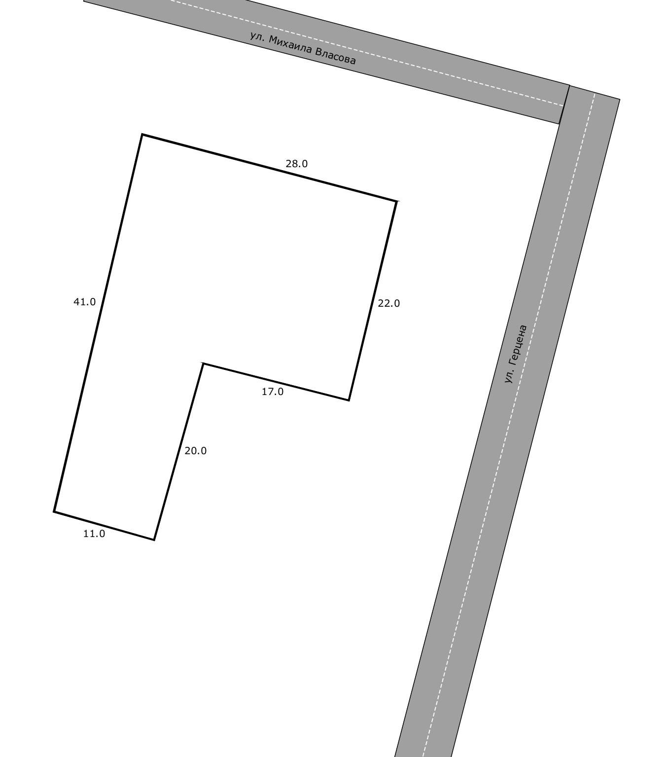
В продаже угловой участок в Центре города на пересечение улиц Михаила/Власова и Герцена.
Фасад по стороне Герцена – 22 метра, по стороне Власова – 28.
Участок отлично подойдет для постройки коммерческого направления, так как улица Герцена – проезжая улица, напротив нашего участка уже есть «Шиномонтаж», а по нашей стороне в соседнем доме сделали «Детейлинг студию». Либо для постройки дома своей мечта на угловом участке 8 соток в самом Центре Города.
Документы все готовы, обременений нет никаких, град план есть.
Аналогичных вариантов в этом месте просто нет!
За более подробной информацией по участку и документам , звоните!


Офис на Карасунской
+7 (989) 120-59-12Оставьте свой номер телефона, мы назначим время звонка и поможем принять решение