Продажа дома с дизайнерским ремонтом в Краснодар, Елизаветинская станица
Продаётся уютный и полностью готовый к проживанию двухэтажный кирпичный дом по адресу: ул. Степная, 162/1.
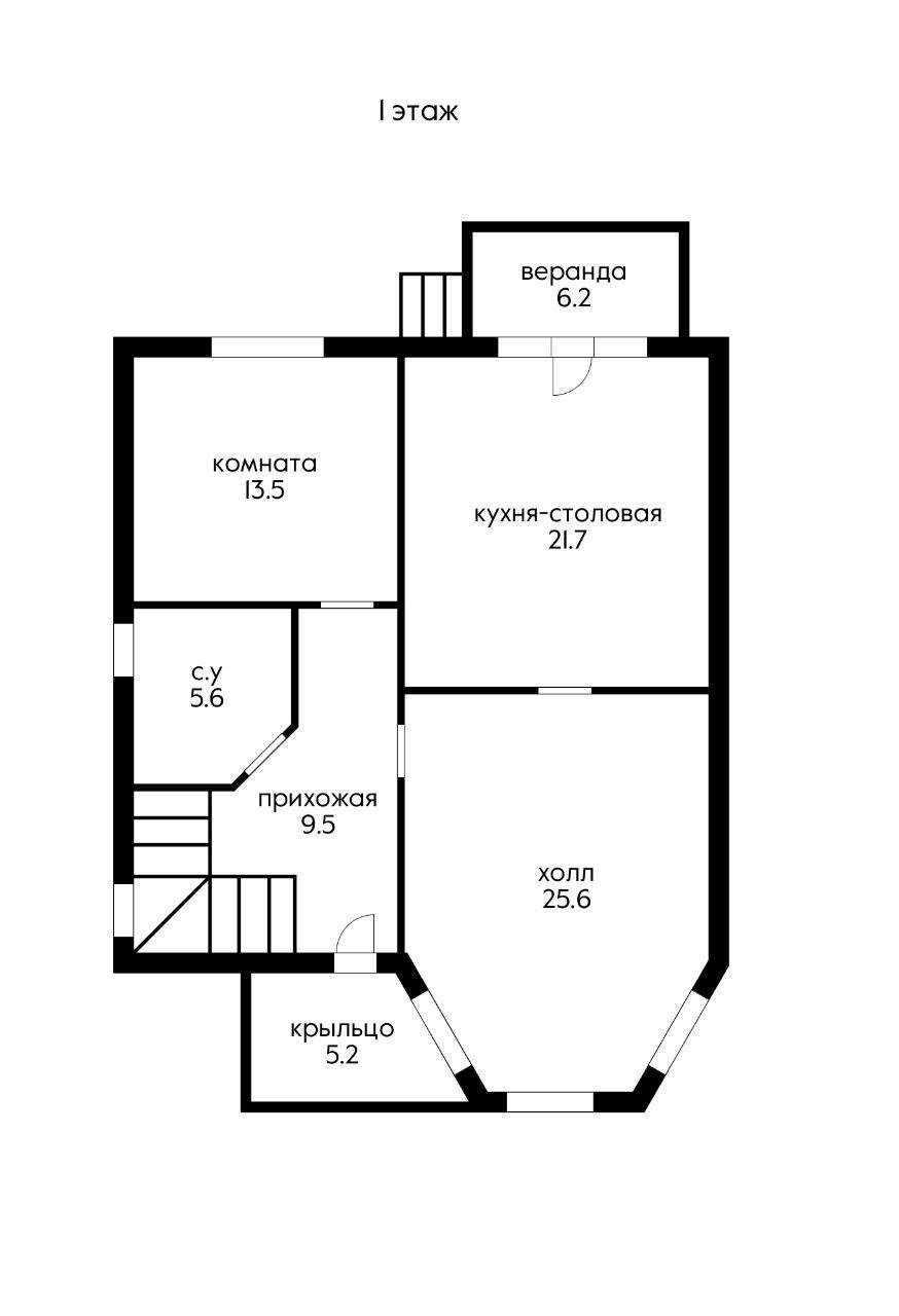
Основные характеристики:
• Общая площадь дома — 150 кв. м
• Жилая площадь — 110 кв. м
• Материал дома — кирпич
• Крыша — металлочерепица
• Дизайнерский ремонт, выполнен со вкусом и в отличном состоянии
Планировка и удобства:
• 2 этажа
• 2 санузла
• Горячая и холодная вода
• Все коммуникации центральные, канализация — септик
• Дом полностью продаётся с мебелью и обстановкой — всё, как на фотографиях, ничего забирать не нужно
Участок и территория:
• Ухоженный двор с газоном
• Закрытая зона барбекю под крышей — идеально для отдыха в любую погоду
• Есть место для игр детей
• Территория аккуратная, зелёная и очень комфортная для жизни
Дом с отличной планировкой, светлый, тёплый и максимально продуман для постоянного проживания семьи. Заезжай и живи без дополнительных вложений.
📞 Звоните / пишите — с удовольствием отвечу на все вопросы и покажу дом!
Арт.1015103843
Оставьте свой номер телефона, мы назначим время звонка и поможем принять решение