Дом 125 м² + 3 сот.
Краснодар, Прикубанский внутригородской округ, мкр. КП Изумрудный город, ул. имени Героя Василия Боченкова, 19
15 999 000 ₽
127 482 ₽/м²
Продается уникальный дом. Приобретайте лучшую локацию для личного проживания.
Мкр. РИП. КП «Изумрудный город».
ул. Боченкова , д. 19
Земельный участок 3 сот.
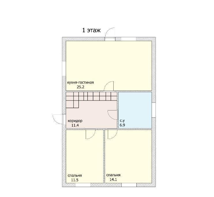
Площадь дома 125 кв. м.
Полутораэтажный.
Дизайнерский ремонт.
Мебель и техника.
4 спальни. Кухня-гостиная. 25.2 кв. м.
2 с/у.
Мастер спальни.
Высота потолков 3,2 м.
Коммуникации центральные.
Год сдачи 2021.
Эргономичная планировка.
Выбираете идеальное место для жизни? Мы вам его покажем.


Офис на Рашпилевской, 3 этаж
+7 (989) 000-12-59Оставьте свой номер телефона, мы назначим время звонка и поможем принять решение