Отдельное здание 700 м²
Краснодар, Прикубанский внутригородской округ, мкр. Молодёжный, ул. Душистая, 20/1
1 400 000 ₽
2 000 ₽/м²
Аренда
ул. Душистая
2-х этажное здание, 1 линия
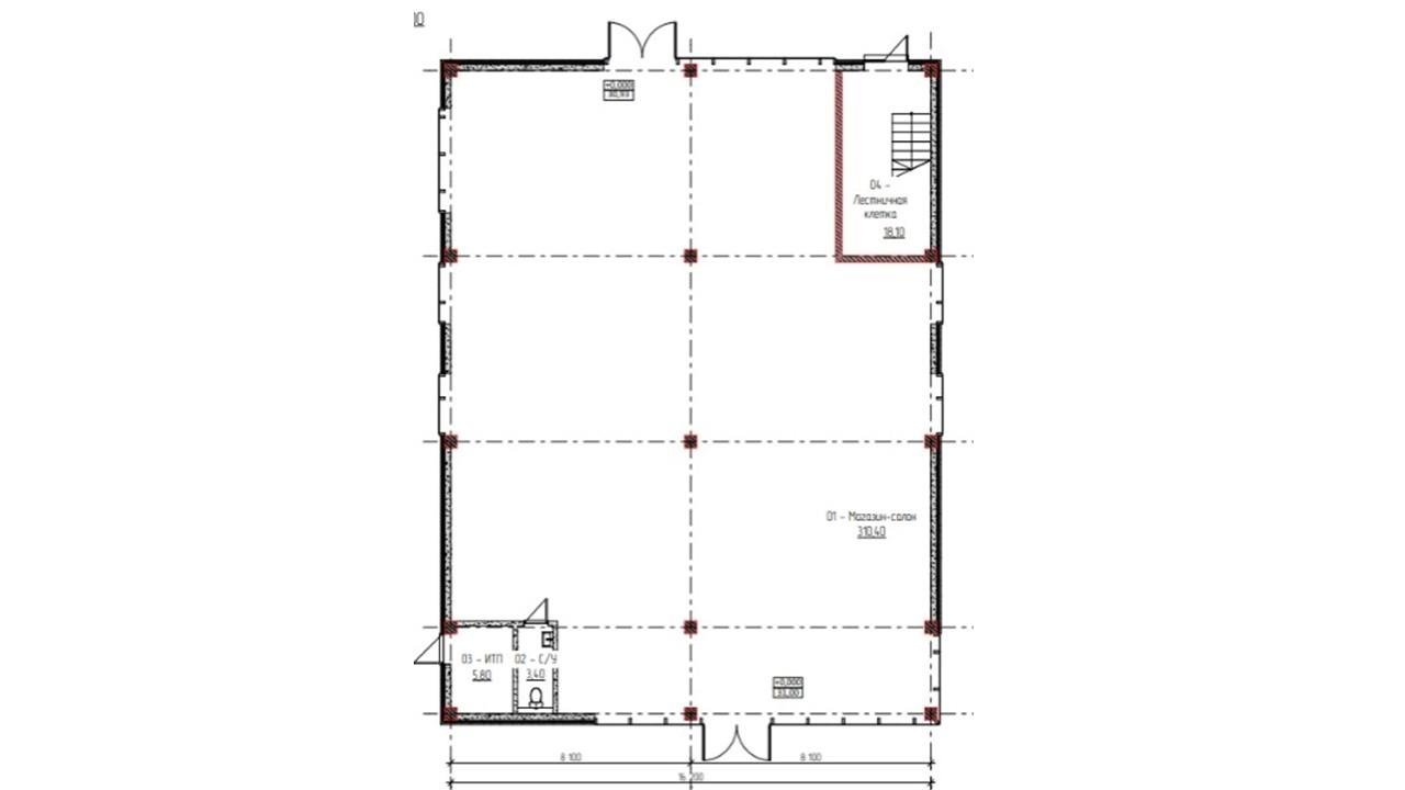
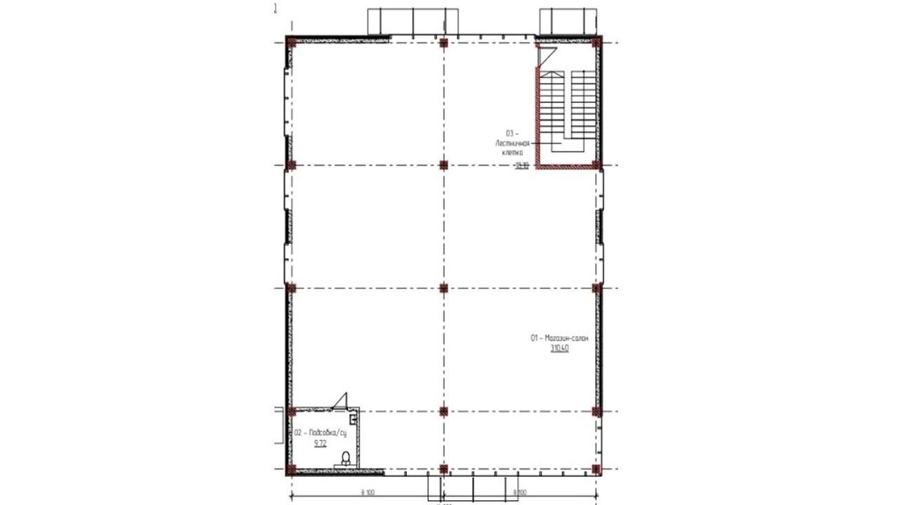
Общая площадь 700 м2
Возможна сдача поэтажно и от 25м2.
* 1 этаж - 350 м2
* 2 этаж - 350 м2
* Высота потолков 3,6 м
* электричество 120 кВт
Сдача объекта конец 2026 года
Здание расположено фасадом на ул. Душистую,
в заселенном мкр. Молодежном , на против строящегося ЖК Иначе.
Цена:
1 этаж - 2500 руб за м2
2 этаж - 1500 руб за м2
Экс
Без вознаграждения со стороны арендатора!

Оставьте свой номер телефона, мы назначим время звонка и поможем принять решение