Торговое помещение 145 м²
Краснодар, Прикубанский внутригородской округ, мкр. Россинского, б-р Адмиралтейский, 1
189 540 ₽
1 300 ₽/м²
Бул. Адмиралтейский, д.1
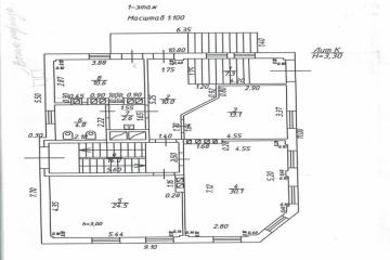
Площадь: 72 +73.8 м2.
1 этаж.
Высота потолка: 3.5 м.
Коммуникации центральные.
5 кВт на каждое помещение (есть возможность увеличения по 15 кВт на каждое)
Помещение расположено на фасаде жилого дома.
2й подъезд, помещения между собой можно объединить.
Цена: 1300 руб/м2

Оставьте свой номер телефона, мы назначим время звонка и поможем принять решение