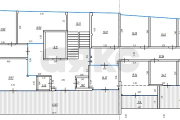
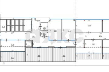
Продается действующая укомплектованная частная поликлиника. Место расположение г. Краснодар, Прикубанский округ. Здание в четырех уровнях. Общая площадь 3862,4 кв.м.
на этаже ~ 965.6 кв.м.
1 этаж – зона ресепшена, приемная;
2 этаж – стационар;
3 этаж – предназначен под операционный блок;
цокольный этаж – предназначен блок МРТ, КТ;
установлен пассажирский и грузопассажирский лифт
эл мощность 350 кВт
центральное водоснабжение и водоотведение, теплоснабжение
парковка
Заключен договор аренды с крупной федеральной сетевой медицинской компанией на долгосрочной период.
Рядом крупный жилой район, вблизи трамвайная и автобусная остановка, несколько ТЦ, удобная транспортная развязка.
На данный момент медицинское направление – одно из самых перспективных видов бизнеса, что позволяет данному проекту находясь в этой локации решать две важные функции: получать стабильную прибыль, как инвестору, так и осуществлять помощь населению.
Без оплаты комиссии со стороны покупателя.
Арт.1014433126
Оставьте свой номер телефона, мы назначим время звонка и поможем принять решение