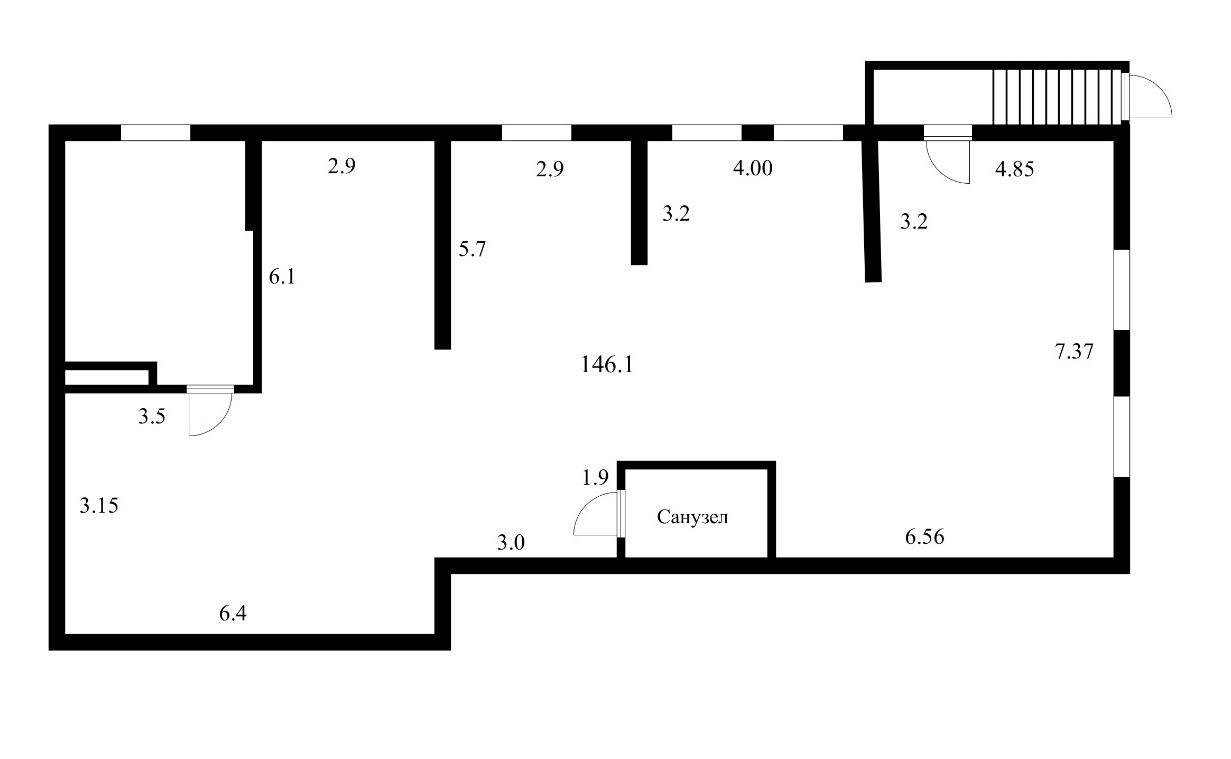
Торговое помещение 146 м²
Краснодар, Прикубанский внутригородской округ, мкр. ЖК Губернский, ул. им. Героя Яцкова И.В., 9к1
15 000 000 ₽
102 669 ₽/м²
Продается нежилое помещение. Общая площадь помещения 146,1 кв. м. Фасад выходит на проезжую часть Жилого комплекса Губернский. Отдельный вход. Парковка стихийная. Активный пешеходный трафик.
Помещение с ремонтом
Установлено кондиционирование и вытяжка.
Планировка свободная
Высота потолков 2.8 м.
Мощность электрическая 20 кВт
Коммуникации центральные
Приглашаем всех к сотрудничеству 1014851050
Арт.1014851050


Офис на Московской
+7 (989) 120-58-12Оставьте свой номер телефона, мы назначим время звонка и поможем принять решение