Сдам в аренду современное коммерческое здание с большим участком в центре Новой Адыгеи (ул. Красная). Идеальная площадка для бизнеса с высоким трафиком и узнаваемостью. Готовое решение для серьезных проектов.
- Ключевые преимущества:
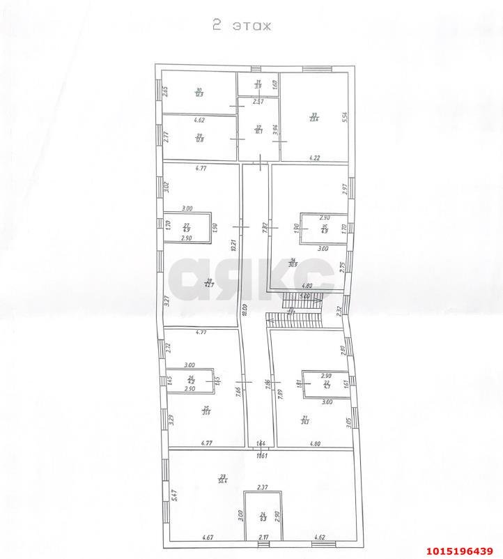
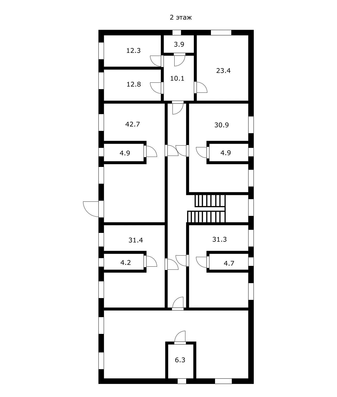
Простор и свобода: Общая площадь здания более 600м2 (2 этажа). Участок более 10 соток, огорожен забором. Выгодная локация: Центр Новой Адыгеи, рядом с ТРЦ Мега. Всего 5-10 минут до центра Краснодара. Окружение - развитая инфраструктура, многоквартирные дома и частный сектор. Прочная конструкция: Надежное кирпичное здание с мощным фундаментом, монолитными перекрытиями и высокими потолками. Готовность к работе: Подведены все центральные коммуникации (электричество, вода, газ, канализация). Текущее состояние - предчистовая отделка. Гибкая планировка: Помещение разделено на большие кабинеты от 35 до 60 м2, в каждом - свой санузел.
- Подойдет для:
Образование и развитие: частный детский сад, школа, учебный центр, спортивная секция. Медицина и забота: медицинский центр, клиника, реабилитационный центр, пансионат для пожилых. Торговля и услуги: шоу-рум, торговое представительство, офис компании. Производство и логистика: легкое производство, цех, склад с офисной зоной. Гостиничный бизнес: мини-отель, гостиница.
- Уникальные возможности участка:
Большой фасад для эффективной рекламы. Благоустроенная территория: вымощенные плиткой дороги, гостевая зона. Просторная парковка для клиентов и сотрудников. Резерв земли для расширения: возможность возведения дополнительных построек (например, летних павильонов, склада, спортивной площадки).
- Ваш бизнес - наш подход:
Готовы выполнить финишный ремонт с учетом специфики вашей деятельности. Рассмотрим индивидуальные условия сотрудничества.
- Условия аренды:
Срок: от 1 года. Коммунальные платежи - отдельно. Требуется залоговый платеж.
Сделайте первый шаг к запуску успешного бизнеса в идеальном месте. Звоните, чтобы назначить просмотр и обсудить все детали. Мы открыты для диалога и ваших предложений.

Оставьте свой номер телефона, мы назначим время звонка и поможем принять решение