Торговое помещение 52 м²
Краснодар, Карасунский внутригородской округ, мкр. Комсомольский, ул. Тюляева, 37/3с2
80 000 ₽
1 533 ₽/м²
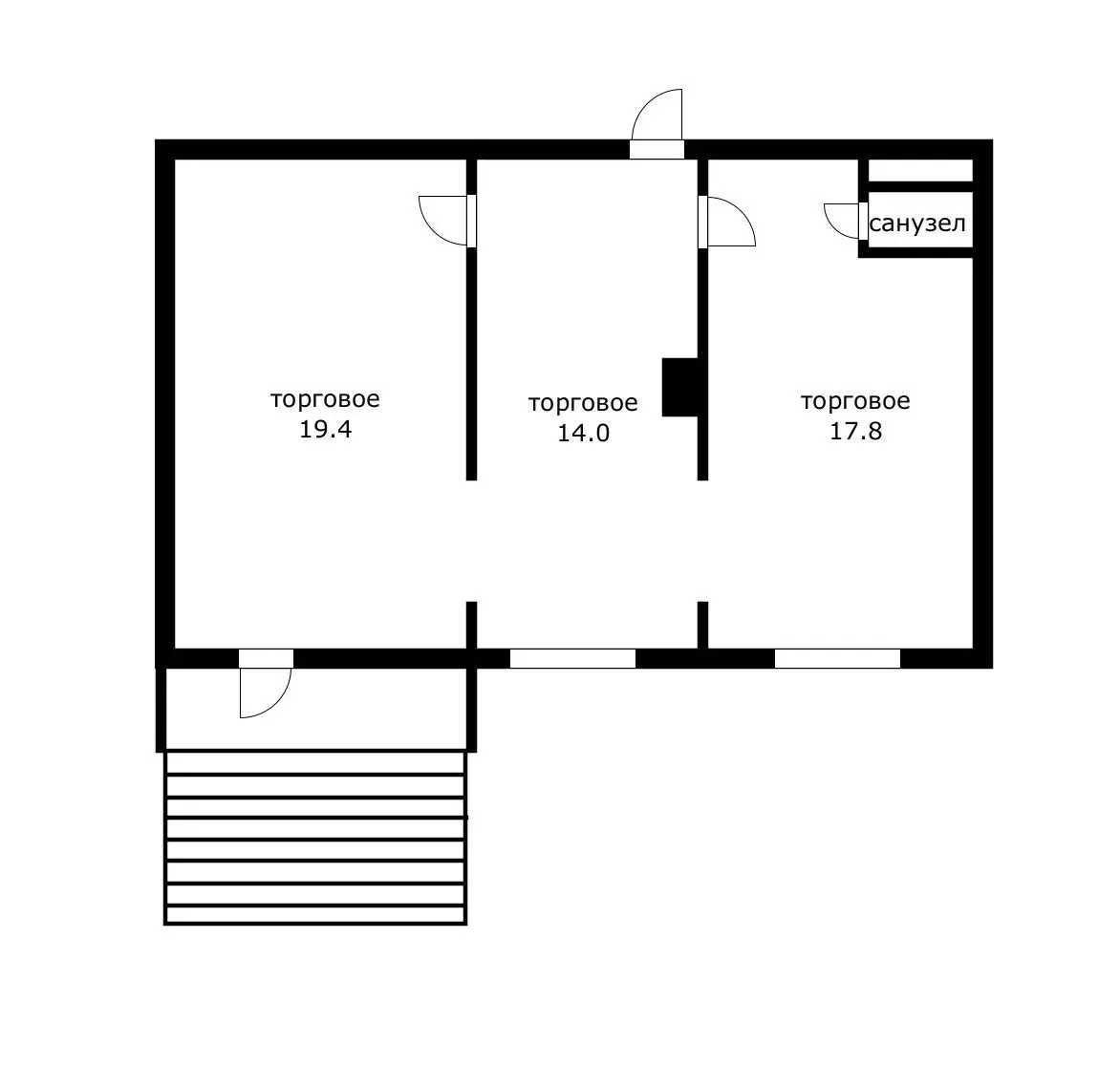
Сдается не жилое помещение на первой линии ул. Тюляева 37/1 , с отдельной входной группой, два витринных окна можно использовать для рекламы ,отдельный сан узел, помещение на первом этаже многоквартирного дома, все коммуникации центральные, прямые договора с ресурсоснабжающими организациями , с большим пешеходным трафик , рядом остановка общественного транспорта, рынок , в этой линейке находятся сетевые арендаторы Агро комплекс, Вайлдберриз, нотариус. В данном помещении размещался магазин обуви, работал 8 лет. Средний пешеходный поток 150-220 человек в час .
Арт.1015230464

Офис на Дзержинского
+7 (989) 000-12-57Оставьте свой номер телефона, мы назначим время звонка и поможем принять решение