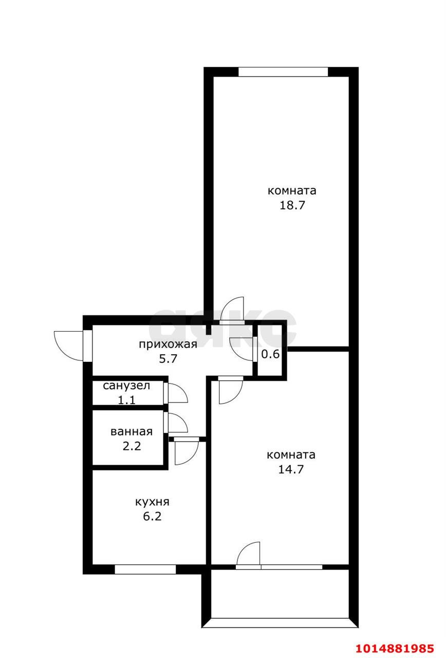
2-комнатная квартира 48 м²
Краснодар, Прикубанский внутригородской округ, мкр. Завод Измерительных Приборов, ул. Московская, 68
4 550 000 ₽
93 047 ₽/м²
Продается отличная двухкомнатная квартира общей площадью 49 кв м.
Место просто бомба- рядом Табрис, ул. Зиповская, до остановки трамвая 2 мин.
Во дворе 2 детских сада и школа, благодаря этому вы вообще не будите тратить время на утренний развоз детей по школам, детским садам, тренировкам.
Звоните!
Арт.1014881985

Офис на Карасунской
+7 (989) 120-59-12Оставьте свой номер телефона, мы назначим время звонка и поможем принять решение