Продается новый элитный двухэтажный дом с бассейном с выходом к берегу реки Кубань.
Расположение и окружение
Престижный район - первая линия улицы Береговой (Гор. Огороды) в квартале С элитной застройкой. Уникальное расположение в конце улицы обеспечивает максимальную приватность и изоляцию от посторонних глаз. На территории квартала предусмотрены:
· Прямой выход к реке Кубань
· Доступ к тропе здоровья
· Зона отдыха в дубовой роще
· Полностью изолированные территории
Технические характеристики
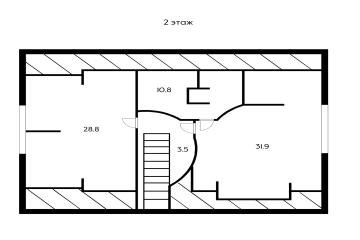
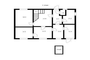
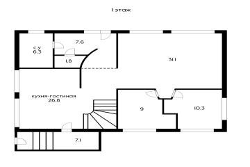
Общая площадь: 350 кв.м
Площадь участка: 7,8 соток
Размеры участка: длина 34 м, фасад 23 м
Конструктивные особенности:
· Монолитный каркас с кирпичными простенками
· Мягкая кровля
· Центральные коммуникации
· Разрешение на строительство на руках
Преимущества объекта
Современный дизайн.
· Дизайнерский проект - дом построен с полным сопровождением дизайн-проекта
· Транспортная доступность - все подъездные пути заасфальтированы
· Правовой статус - ИЖС, все документы в порядке
· Приватная территория - полная изоляция от посторонних
· Развитая инфраструктура элитного района
Бассейн является частью премиальной комплектации дома и дополняет общую концепцию роскошного жилья в престижном районе Краснодара.


Офис на Рашпилевской, 3 этаж
+7 (989) 000-12-59Оставьте свой номер телефона, мы назначим время звонка и поможем принять решение