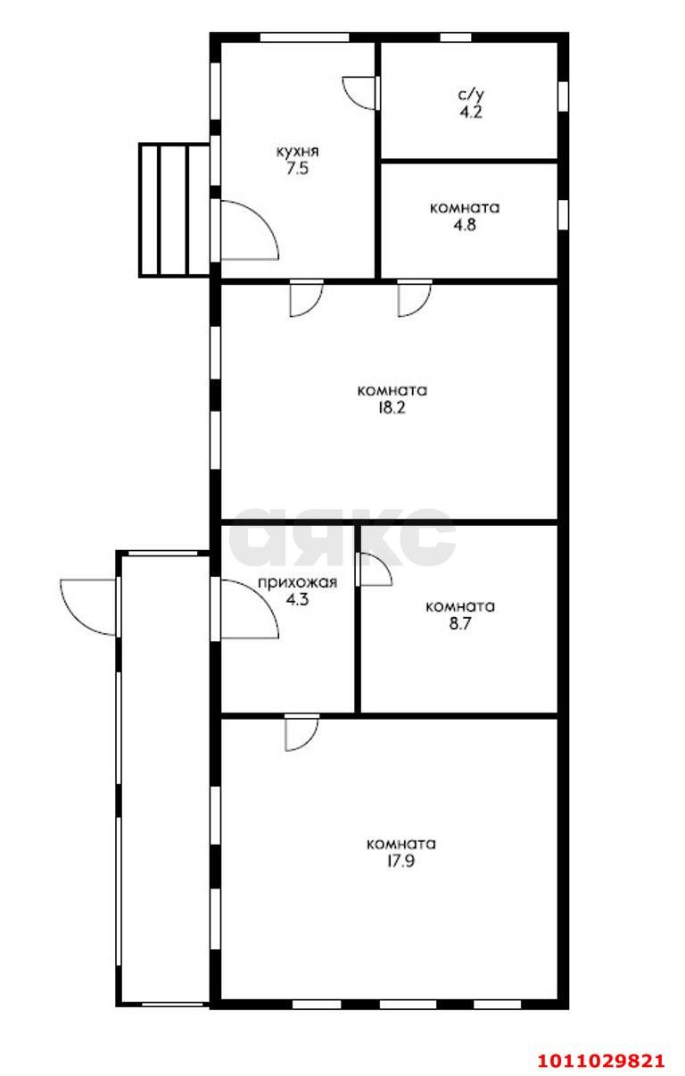
В продаже дом на 2 входа, расположенный в экологически чистом районе Краснодара - ст. Старокорсунская. В одной части дома сделан ремонт - кухня, санузел, 2 комнаты. В гостиной действующий камин, в санузле установлен бойлер. Вторая часть дома в предчистовой отделке.
К дому подведены 2 точки центрального водопровода, 2 точки электричества - на 3 кВт и 15 кВт. На участке есть дополнительная скважина для полива сада и огорода. Септик и центральная канализация. Газ по меже, трубу подняли над забором для возможности въезда крупной техники.
Участок прямоугольной формы с фасадом 20 м общей площадью 23,5 соток позволяет построить дом своей мечты любой площади. Участок ровный, очищен от построек. На половине участка высажен молодой сад элитных сортов фруктовых деревьев. 105 деревьев - вишня, черешня, яблоня, инжир, хурма, унаби, слива, груша, персик, нектарин, айва, абрикос, зизифус. Каждого вида по 5-15 сортов. Все деревья молодые и плодоносящие. Кроме этого высажены жимолость и малина. для огорода свободно еще около 10 соток.
Вы можете построить особняк, дом для гостей, баню, летнюю кухню, вырыть бассейн, обустроить великолепную зону отдых и у вас еще останется место! А на время строительства можно жить в уже построенном доме. Участок с домом расположены в самом центре станицы, в двух кварталах от школы, детского сада, поликлиники, сквера, реки Кубань, остановок общественного транспорта, рынка, магазинов и супермаркетов. Это наиболее удачная локация, в тишине, у реки и при этом в центре инфраструктуры.
До крупнейшего торгового центра OzМолл, Метро, крупных супермаркетов 10 минут на машине, до Горячего Ключа 40 минут, а до Черного моря - полтора часа.
Хотите жить в тихом пригороде мегаполиса? Этот дом с великолепным участком и элитным садом ждет вас!
Арт.1011029821


Офис на Мачуги
+7 (989) 262-81-81Оставьте свой номер телефона, мы назначим время звонка и поможем принять решение