Продаю уютный жилой дом в экологически чистом районе города Краснодара!
Предложение можно рассмотреть как для постоянного проживания (прописка г. Краснодар), так и для загородного отдыха!
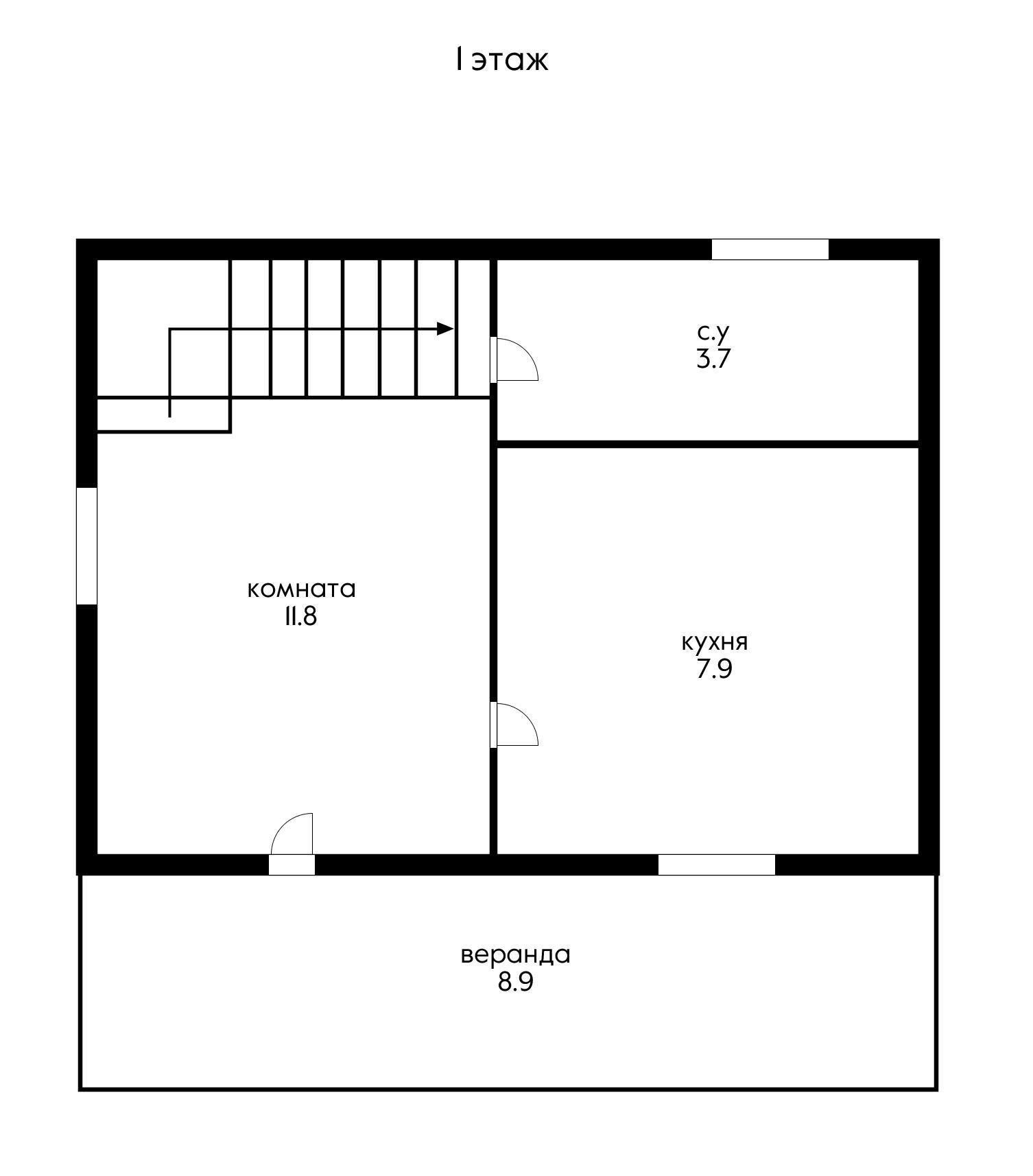
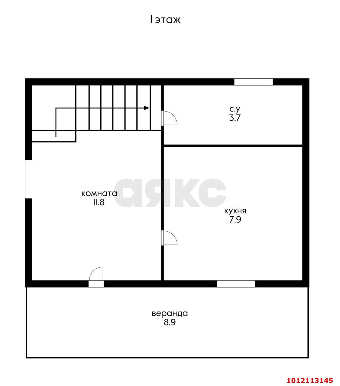
Дом 56 м2 с отличным ремонтом. Светлые комнаты, совмещенный санузел, просторная кухня и уютная веранда. Дом деревянный, выполнен из экологически чистых материалов. Остается частично мебель и техника. Заезжай и живи на свежем воздухе, наслаждаясь пением птиц и отдыхая от городской суеты! В доме электрическое отопление, вода из скважины, септик.
Участок 6 соток, ровный, сухой! Двор облагорожен. На участке установлен металлический забор. Есть молодой сад с плодоносными деревьями.
Недалеко река Кубань, прекрасное место для рыбалки! На дачном массиве есть пруд с зонами отдыха, детскими и спортивными площадками. Рядом магазины, остановки общественного транспорта, где также курсируют школьные автобусы.
Документы готовы к продаже.
С радостью отвечу на все вопросы и организую показ! Звоните!
Арт.1012113145
Оставьте свой номер телефона, мы назначим время звонка и поможем принять решение