Дом 106 м² + 5.09 сот.
Мелиоратор, ул. Ароматная, 13
6 400 000 ₽
59 925 ₽/м²
Продается просторный дом более 100 квадратных метров на участке в 5 соток в самом близком дачном поселке к Краснодару "Мелиоратор".
Улица заасфальтирована и закрыта шлагбаумом. На участке помимо дома расположены гараж и котельная. Дом газифицирован. Проведено центральное водоснабжение, а также имеется водовод для полива сада. На участке растут плодовые деревья и ягодные кустарники, цветы.
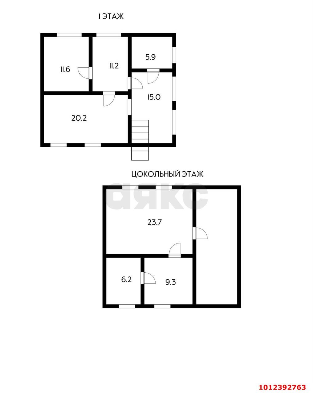
Дом полутороэтажный. В цоколе размещается кухня с подсобкой и большая гостиная. На верхнем этаже: лоджия, санузел с ванной, гостиная и две спальни.
Дом кирпичный. Дорожки и двор бетонированные.
Просмотры в любое время. Звоните. Ответим на все вопросы.
Арт.1012392763
Оставьте свой номер телефона, мы назначим время звонка и поможем принять решение