Дом 71 м² + 3 сот.
Краснодар, Прикубанский внутригородской округ, мкр. КП Изумрудный Город, ул. имени Героя Ильи Васюка, 35к1
8 000 000 ₽
112 045 ₽/м²
В продаже дом в коттеджном поселке "Изумрудный город"
Рядом с поселком развита инфраструктур, есть частная школа. Все необходимые магазины, аптеки, кафе, пекарни в пешей доступности.
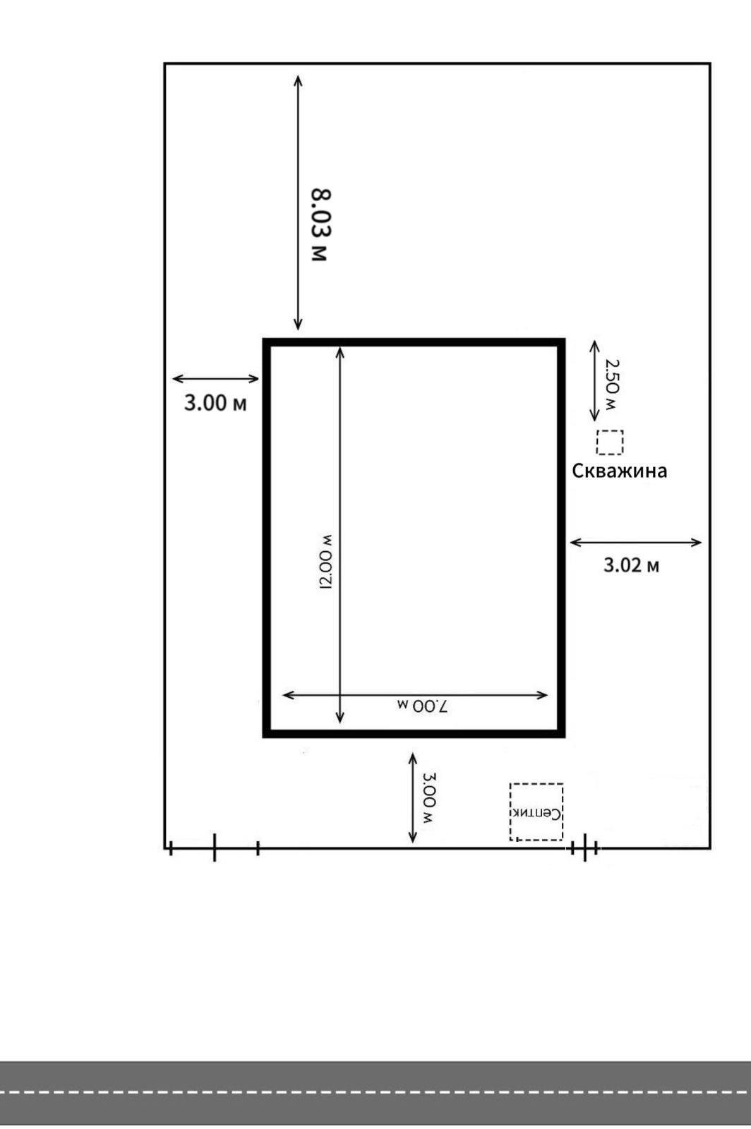
Одноэтажный дом на 3 сотках земли общей площадью 71 м2. Дом продается в пред чистовой отделке. 3 полноценные спальни и большая кухня гостиная. Совмещенный санузел.
Коммуникации: септик, скважина, газ есть.
На заднем дворе можно разместить зону барбеккю или небольшой бассейн.
Остались вопросы звоните!
Арт.1013011202
Оставьте свой номер телефона, мы назначим время звонка и поможем принять решение