Дом 84 м² + 3.18 сот.
Южный, п. коттеджный Южная столица, ул. Туапсинская, 53
6 100 000 ₽
72 619 ₽/м²
В продаже новый дом в коттеджном поселке "Южная Столица".
Прекрасное место для жизни и отдыха от городской жизни. В поселке у вас есть все необходимое: продуктовые магазины, пункты выдачи маркетплейсов, парикмахерские, школы и детские сады, поликлиника и собственный мфц.
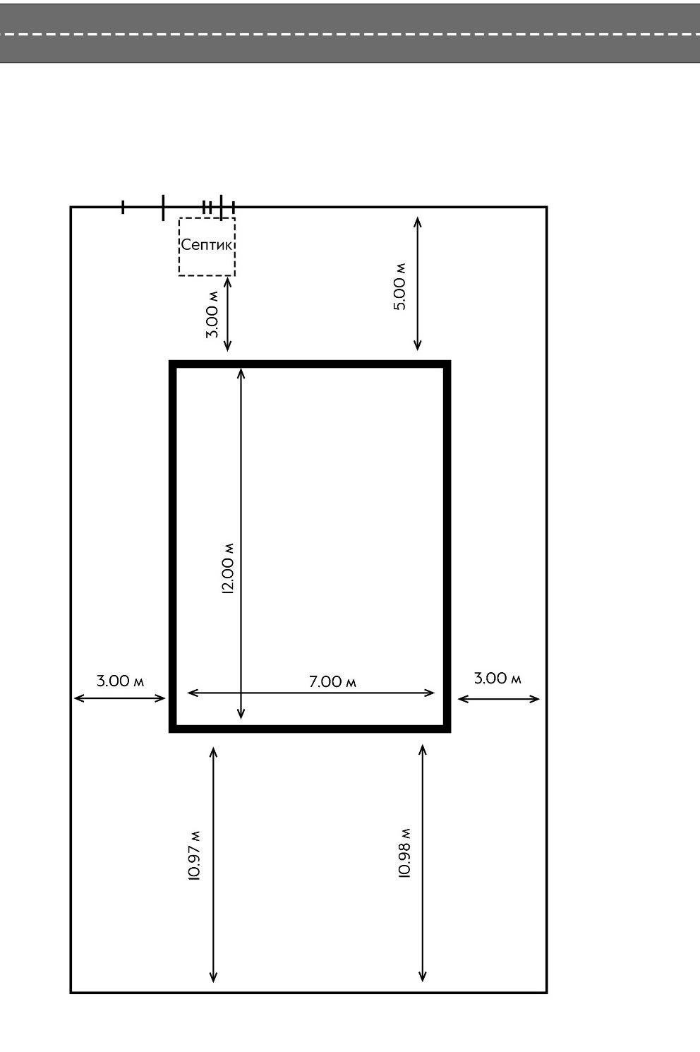
Новый дом 71.2 м2. Земельный участок 3.18 сотки. Дом в пред чистовой отделке. Септик, скважина и центральный газ. На заднем дворе сможете разместить бассейн, барбеккю или баню. В доме в зонах общего пользования качественный теплый пол.
Дом в процессе постановки на кадастровый учет.
Звоните!
Арт.1013033446
Оставьте свой номер телефона, мы назначим время звонка и поможем принять решение