Дом 128 м² + 2 сот.
Краснодар, Прикубанский внутригородской округ, мкр. Парковый, пр-д 5-й Архангельский, 3к3
5 500 000 ₽
42 969 ₽/м²
Продам уютный таунхаус с самой популярной и редкой планировкой, с двумя балконами, в одном из лучших коттеджных поселков.
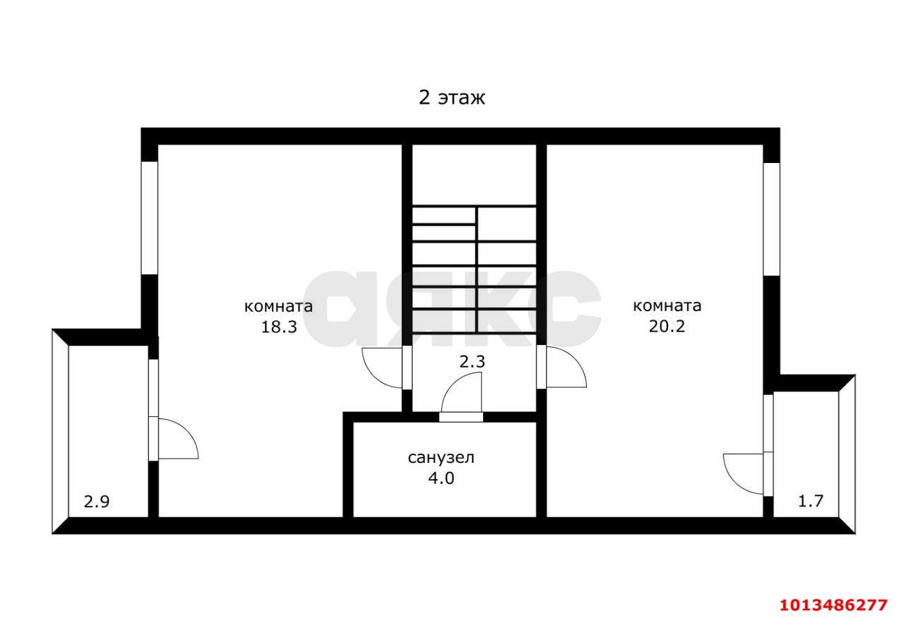
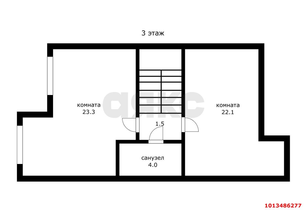
На первом этаже просторная кухня-гостиная с витражным выходом в зону барбекю и лаундж-зону, кабинет, санузел и гардеробная. На втором этаже две спальные комнаты, в каждой выход на балкон и санузел.
Атмосфера очень похожа на европейскую: тихо, спокойно, чисто. Есть возможность разместить бассейн и барбекю!
Собственная парковка для авто. Спокойные доброжелательные соседи. До школы 10 минут прогулочным шагом. Звоните!
Арт.1013486277

Офис партнер на Красных Партизан
+7 (989) 010-02-06Оставьте свой номер телефона, мы назначим время звонка и поможем принять решение