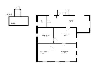
Дом 172 м² + 11 сот.
Краснодар, Прикубанский внутригородской округ, мкр. Отделение № 1 ОПХ Колос, пер. Чистый, 6
14 500 000 ₽
84 058 ₽/м²
Ровный участок 11 соток с 2-х этажным домом напротив ЖК Догма Парк и ЖК Немецкая деревня.
При продаже возможны варианты: покупка дома с участком 5 соток за 10,0 млн. рублей и участок для ИЖС 6 соток за 9,5 млн. руб.
Приобретение дома с участком выгодно как для инвестиционных, так и коммерческих целей. Локация: спокойный, тихий и уютный переулок вблизи от активных транспортных магистралей (Западный обход, ул. Дзержинского, Ростовское шоссе).
Показ участка позволит рациональному покупателю еще более полно представить его преимущества.
Все варианты обсуждаются с реальным покупателем.
Арт.1013515270
Оставьте свой номер телефона, мы назначим время звонка и поможем принять решение