В продаже коттедж в самом сердце Краснодара, уникальность данного предложения состоит в деталях и подходах к комфорту и уюту. Дом не просто построен в 4 уровня, а спроектирован чтобы учесть уникальность каждого проживающего в нем человека, начиная с детских комнат и мастер спален, заканчивая придомовой территорией, бассейном и зоной BBQ.
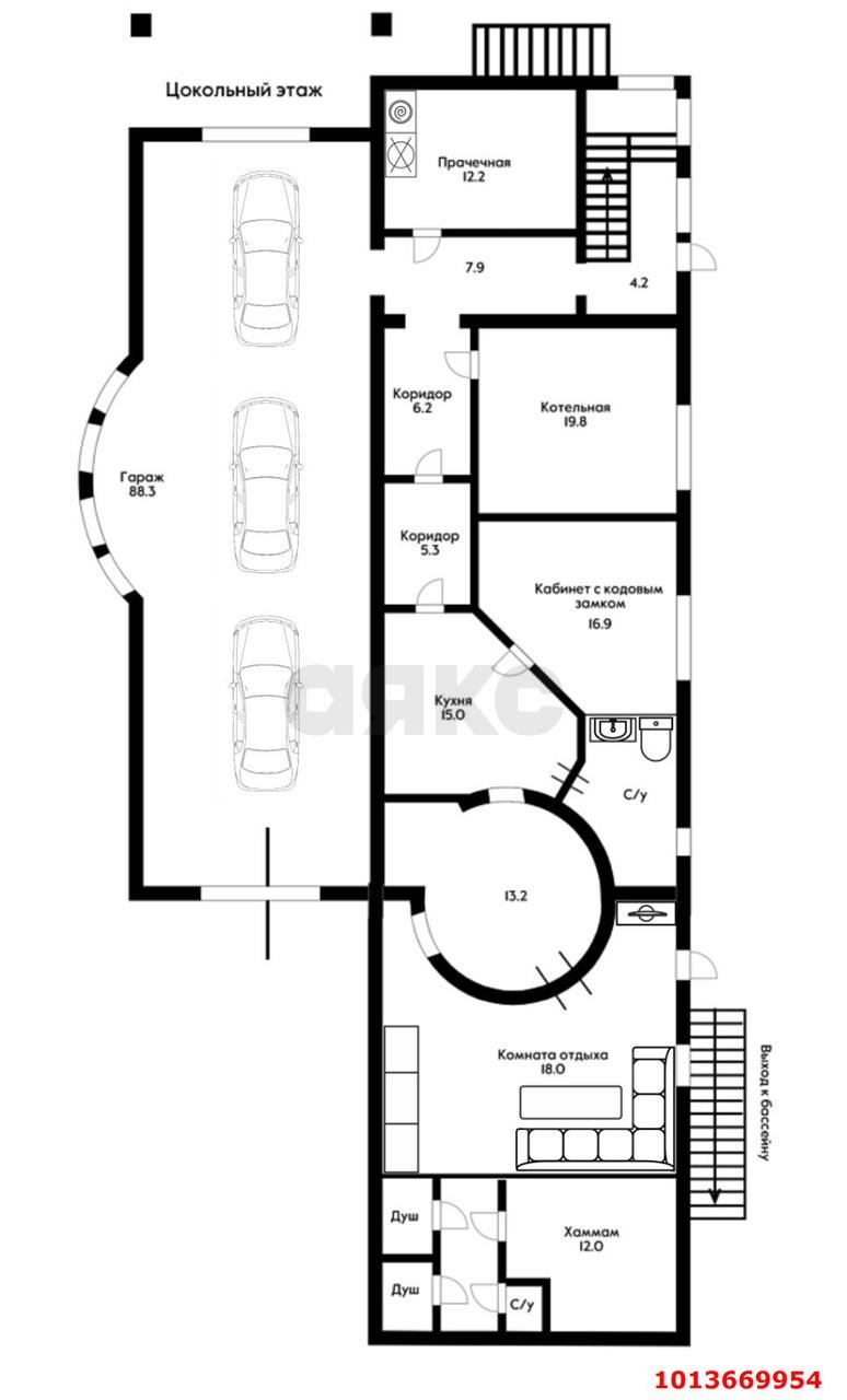
Первый уровень коттеджа вмещает паркинг на 3 автомобиля, котельную, прачечную, зону отдыха с хамамом и уникальный кабинет главы семьи.
Второй уровень - первый этаж, встречает Вас 153 метровой парадной, с зонированием гардеробной, кухни, гостинной, залом с камином. Единое пространство, в тоже время с выражением отдельных частей, продумано в деталях, главным смыслом является уют и правильная функциональность. Так же не забыли про Ваших гостей, на этом уровне расположена гостевая комната, гардеробная и гостевой санузел.
Третий уровень - второй этаж представляет семейную зону с 4-мя просторными мастер спальнями, в которых каждого члена семьи порадуют личные гардеробные и ванные комнаты.
Четвертый уровень - мансардный этаж позволит Вам создать собственное пространство для любых Ваших увлечений вплоть до бильярда или тренировочного зала.
Придомовая территория подарит самые яркие впечатления и примет всех Ваших друзей или гостей. К Вашим услугам зона бассейна с подогревом и террасой, кухонная часть с BBQ вместит даже большую компанию и подарит Вам новые кулинарные возможности. Ландшафтный дизайн будет радовать глаз практически с любой части участка.
Коттедж ждет своих новых хозяев и готов принять их без промедленья, Вы оцените в этом доме всё, итальянская мебель, текстиль, люстры, техника, подбирались с акцентом на уникальность и комфорт.
Всегда рада обсудить все технические характеристики коттеджа и ответить на любые Ваши вопросы.
Предварительная запись на показ.

Оставьте свой номер телефона, мы назначим время звонка и поможем принять решение