Новый дом в развивающемся районе за городом!
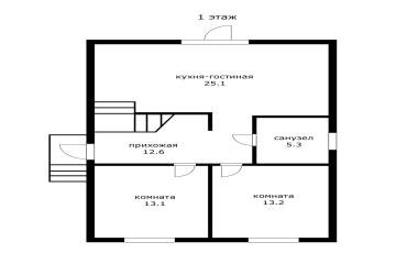
Предлагаем Вашему вниманию современный дом на этапе строительства в предчистовой отделке. Дом оборудован всеми необходимыми коммуникациями: септик, центральное водоснабжение, газ по границе участка.
Район активно застраивается, вокруг уже есть вся необходимая инфраструктура - три школы, несколько детских садов, а также новый спортивный комплекс. До центра города Краснодар всего 8 км, а до районного центра а. Тахтамукай, где находятся все муниципальные и социальные объекты, можно добраться за 5 минут.
Отличное месторасположение дома позволяет с комфортом добираться до побережья Черного моря. Это идеальный вариант для тех, кто ценит спокойствие загородной жизни в сочетании с развитой инфраструктурой.
Не упустите свой шанс стать владельцем современного, надежного и удобно расположенного дома! Спешите, количество домов ограничено.
Арт.1013681912
Оставьте свой номер телефона, мы назначим время звонка и поможем принять решение