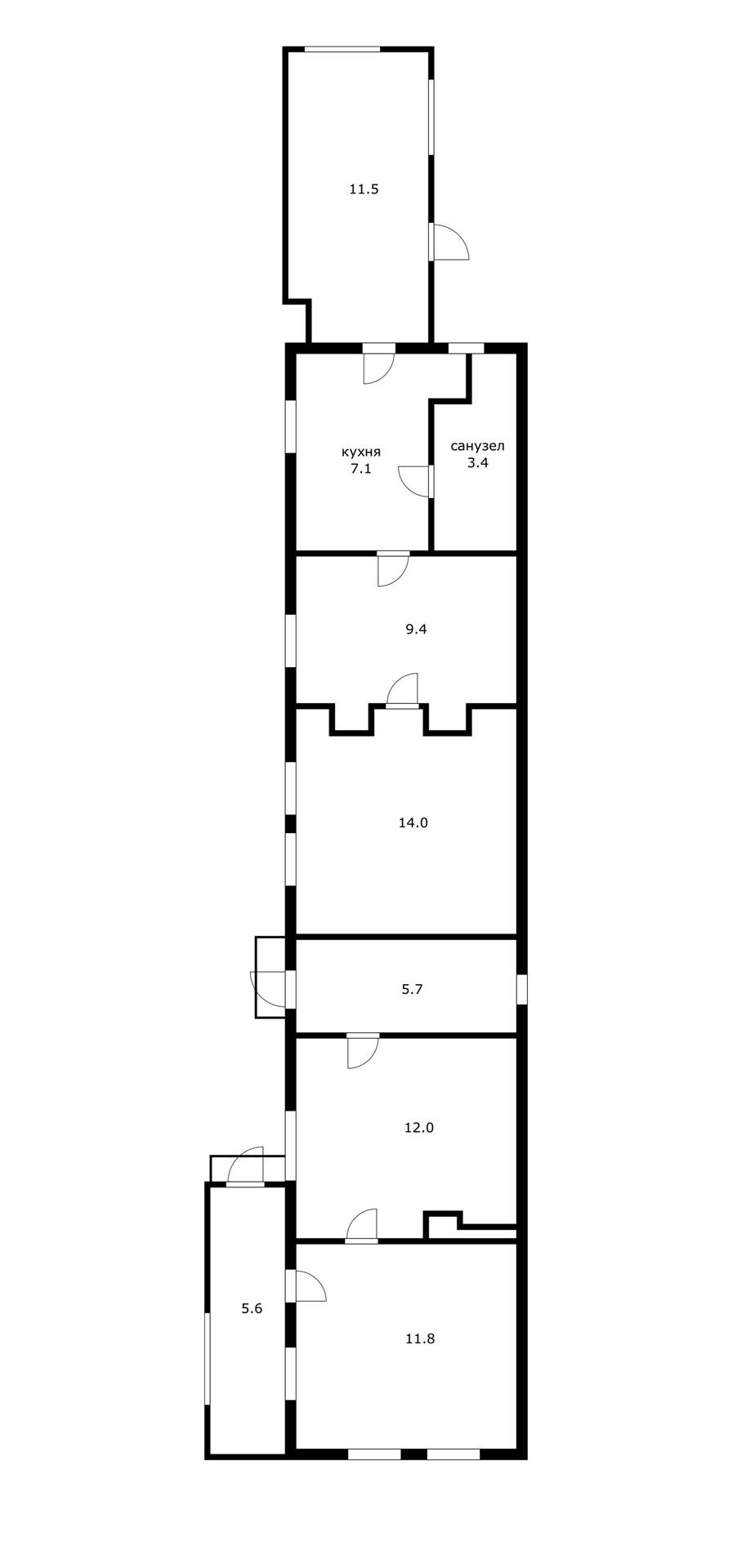
Дом 63 м² + 2.5 сот.
Краснодар, Западный внутригородской округ, мкр. Фестивальный, ул. Воровского, 95
8 500 000 ₽
133 438 ₽/м²
Продаётся дом в центре Краснодара!
Локация:
В 1 минуте пешком — школа.
2–5 минут до остановок всех видов транспорта.
Магазины, банки, супермаркеты, кафе и рестораны — 5–10 минут пешком.
Участок:
Площадь: 2,5 сотки (земля ИЖС).
Перед домом — широкая дорога и место для парковки нескольких машин.
Есть возможность купить дополнительно участки: 1 сотка и 3 сотки рядом.
Дополнительно:
Подробности уточняйте по телефону.
Идеальный вариант для жизни в центре города с развитой инфраструктурой!


Офис на Гаврилова
+7 (989) 120-57-75Оставьте свой номер телефона, мы назначим время звонка и поможем принять решение