Продаётся новый, красивый дом в коттеджном поселке "Рубиновый Берег", который находится в непосредственной близости к хутору Ленина.
КП «Рубиновый Берег» тихое красивое место для достойной жизни. Благодаря близости Краснодарского водохранилища в хуторе Ленина образовался свой, очень комфортный и экологически благоприятный климат. Территория коттеджного поселка закрытая, въезд через шлагбаум и пост охраны. Удобный выезд на побережье Черного моря или к Кавказскому горному хребту. Прописка городская. Рядом находится все необходимые магазины и объекты инфраструктуры.
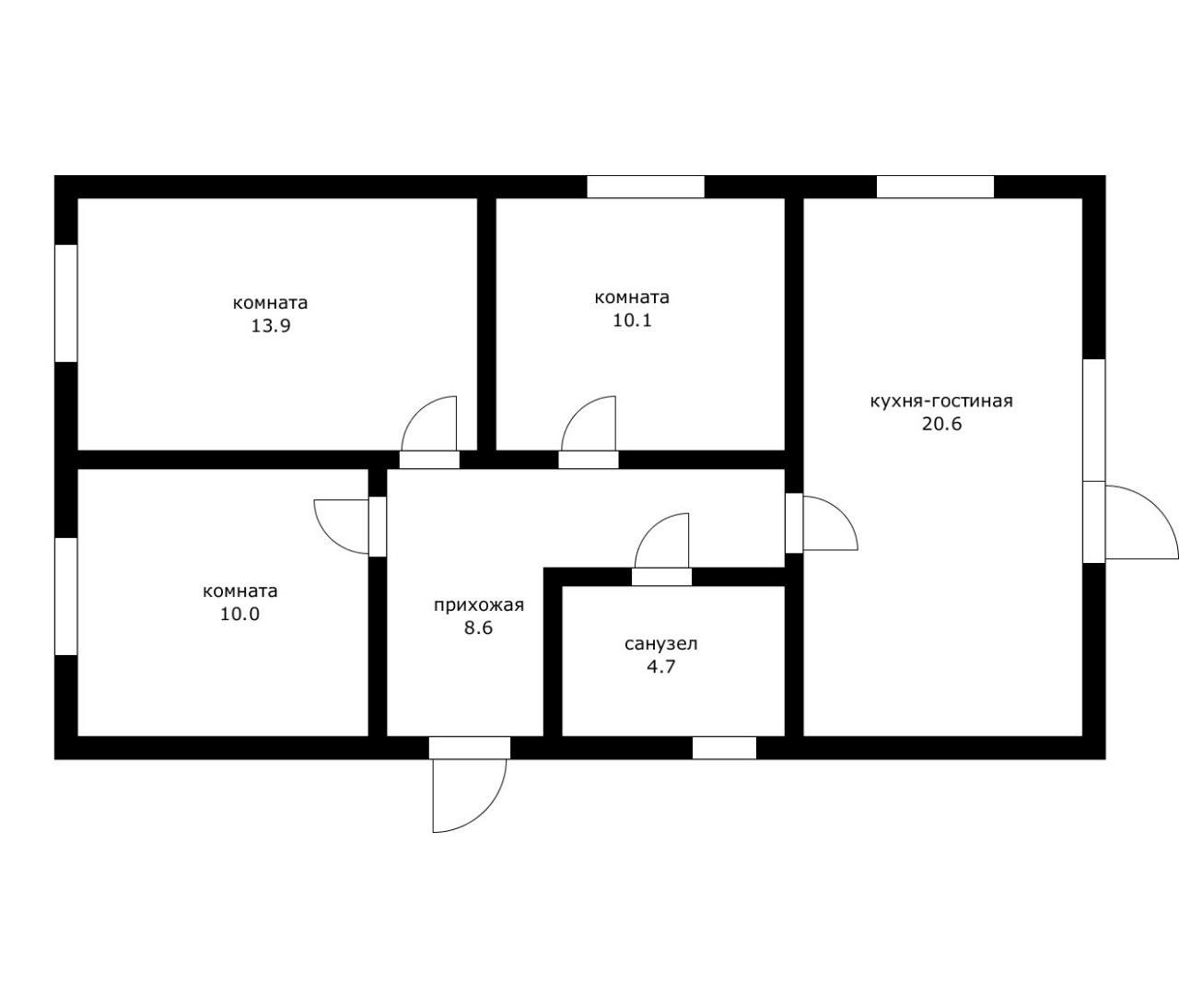
Дом продается в качественной предчистовой отделке. Все коммуникации в доме. Планировка состоит из трех изолированных комнат и просторной кухни-гостиной, где вы сможете семьей собираться за уютными ужинами.
Рассмотрим все формы расчета.
Звоните!
Арт.1013781314

Офис на Селезнёва
+7 (918) 974-20-79Оставьте свой номер телефона, мы назначим время звонка и поможем принять решение