Продается эксклюзивный, уютный, теплый и качественный дом общей площадью 514 м2., строился для себя. Стоимость дома указана с дисконтом относительно фактически понесенных затрат на строительство.
Дом построен полностью кирпича . Толщина стен 55 см. Крыша выполнена из черепицы двойного обжига немецкой фабрики Meyer-Holsen (гарантийный сертификат 50 лет). Стеклопакеты бронированные, светоотражающие. Летом в доме прохладно, зимой тепло (для отопления достаточно теплых полов). Колпаки труб-медные.
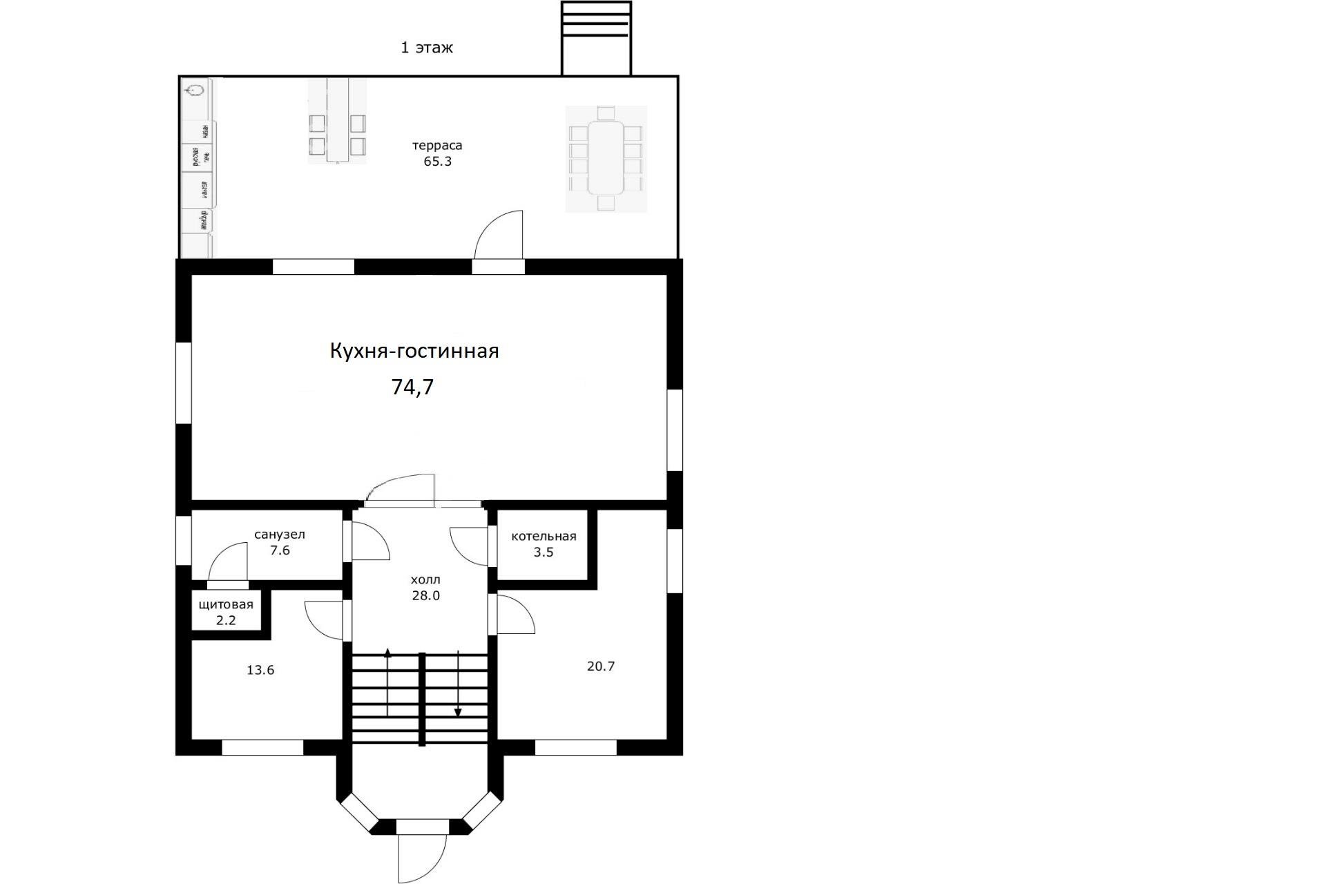
Дом в 4 уровнях. Кухня-столовая-гостиная, с выходом на утепленную террасу с зоной барбекю.
Гардеробная в каждой комнате, 5 сан. узлов , холл. К дому примыкает Навес на 3 автомобиля.
Охранная сигнализация, видеонаблюдение, спутниковое телевидение, интернет. Отопительная система BUDERUS 73кВТ (Германия), установлены теплые полы.
Коммуникации: свет 15кВТ, резервный генератор, современный септик ТОПАС, артезиан, газ.
Отделка дома в классическом стиле с использованием экологически чистых материалов. Полы-паркетная доска, метлахская плитка (Франция), клинкерная плитка(Германия) и натуральный мрамор (Италия). Стены в жилых помещениях окрашены краской на водной основе farrow&Ball и Little Green (Англия). Потолки в жилых комнатах из гипсокартона, во влажных зонах- натяжные. Двери межкомнатные-деревянные производства Италии. Сантехника американской фирмы KOHLER, английской IMPERIAL. Лестница из натурального и красивого дерева бук.
Кухня оборудована мебелью из Италии и встроенной немецкой бытовой техникой (газовая панель, вытяжной модуль, холодильная камера, морозильная камера, посудомоечная машина, автоматическая кофе машина, микроволновая печь, духовой шкаф). Столешница и рабочая поверхность из искусственного камня. Встроенные шкафы и гардеробные комнаты выполнены по дизайнерскому проекту. Вся мебель и освещение в доме импортного производства (США, Англия, Италия, Австрия), спальные места оборудованы матрасами Kingkoil.
Дом расположен на участке 14 соток. Кирпичный забор. Двор выполнен по ландшафтному дизайну.
Сауна, бильярд все это сделано по спец заказу!
Во дворе теплица с отоплением.
Большой подогреваемый бассейн.
Больше фото по запросу.
Звоните с радостью вам отвечу на все вопросы.
Арт.1013806270
Оставьте свой номер телефона, мы назначим время звонка и поможем принять решение