Продам отличной планировки и очень качественной постройки кирпичный дом в одном из лучших районов города Краснодар - "Черемушки".
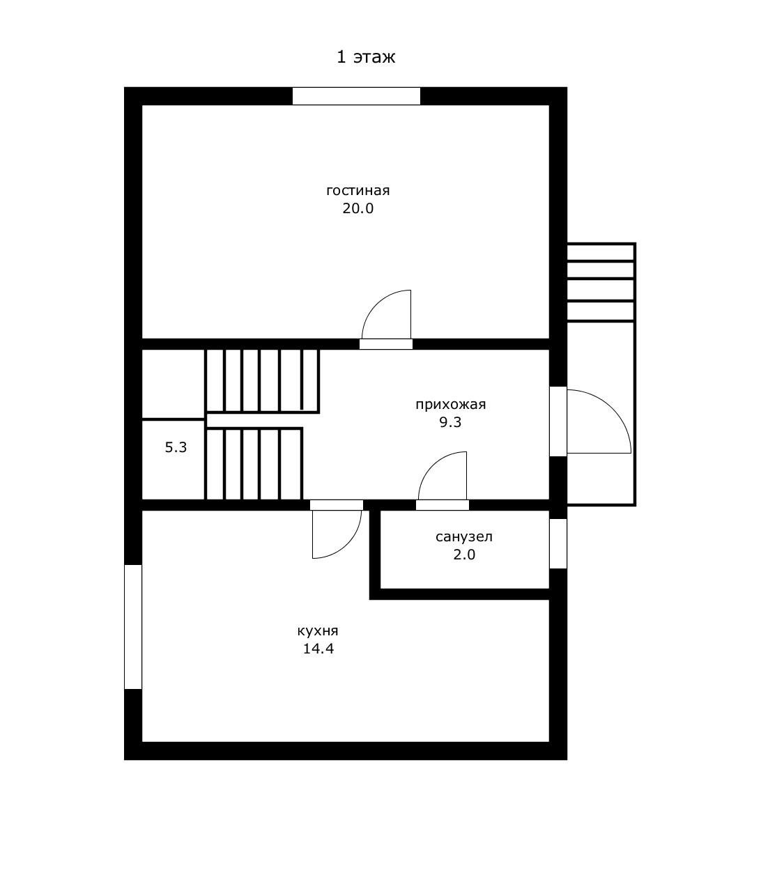
Постройка дома 2011 год. 2 этажа, общая площадь 95м2. В доме две изолированные спальни и большая гостиная. Просторная кухня-столовая - более 14м2. Оба этажа оснащены ванными комнатами с туалетом, в одной из них душевая, в другой - ванная. Очень просторная прихожая, в которой достаточно мебели для использования под одежду и обувь. Теплые полы полностью весь первый этаж. Установлен новый газовый двухконтурный котел. Объект полностью оснащен центральными коммуникациями: свет, вода, газ и канализация. Двор уложен новой плиткой и оснащен новым навесом. Это домовладение отличная альтернатива трёхкомнатной квартире по ценовой категории, хотя и с небольшим, но своим очень уютным двором, где приятно проводить время, а также использовать под парковку своего авто. Дом полностью меблирован и оснащен всей необходимой бытовой новой техникой. В этом доме очень светло и уютно, в нём очень хочется жить, наслаждаясь уютом, а также пониманием того, его местоположение дома очень замечательное, т.к. вблизи от дома всё, что необходимо для качественной городской жизни: ул. Ставропольская в трех кварталах, школы, гимназия, высшие учебные заведения, в т.ч. КубГу, детские сады, рынки, торговые центры и парки отдыха - всё это усиливает осознание того, что приобретение именно этого дома является прекрасным решением жилищного вопроса своей семьи.
Звоните, буду рада рассказать всё подробно.
Арт.1013840104
Оставьте свой номер телефона, мы назначим время звонка и поможем принять решение