Продается эксклюзивный участок площадью 20,5 соток с проектом дома. В стоимость включены и участок, и строительство дома под ключ до момента ввода в эксплуатацию.
Участок утопает в зелени, окружен высокими деревьями, что гарантирует вам полное уединение и покой.
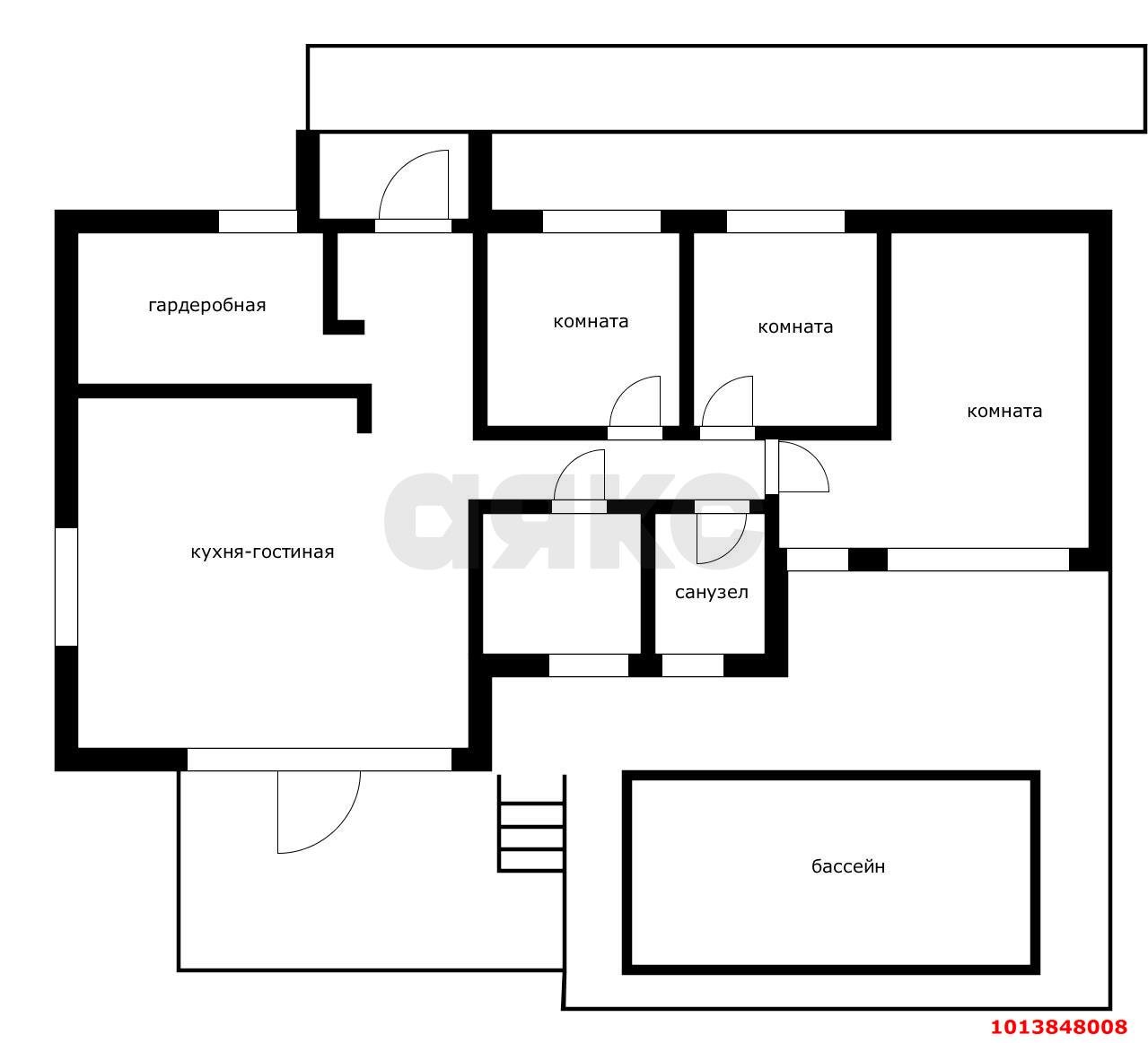
Есть готовый проект, но по вашему желанию возможно внести в него изменения.
Преимущества:
* Идеальное расположение: Участок находится в станице Динская — удобное и стратегически выгодное место всего в 20 км от Краснодара. Рядом расположен большой, новый и ухоженный парк Комсомольский, который станет идеальным местом для прогулок и отдыха.
* Готовность к строительству: Все технические условия на воду и электричество уже получены, а разрешение на строительство дома площадью 120 м² — в наличии.
* Гибкость проекта: Проект дома согласован и готов к реализации проект бюро - готов АР и ЖБ, если вам нужно больше пространства, есть возможность добавить второй этаж или поменять планировку комнат на первом этаже.
* Технический надзор: За контролем всех этапов строительства будет следить известная компания Карбонит, которая занимается техническим надзором и имеет обширный опыт работы по всему миру. Вы можете быть уверены в высоком качестве строительства.
Особое предложение:
Этот участок — идеальный выбор для тех, кто хочет создать свой дом мечты в уникальном месте, рядом с Краснодаром, и получить гарантию качества под строгим контролем профессионалов. Предложение ограничено, таких участков больше нет!
если остались вопросы, звоните, отвечу и организую показ!

Оставьте свой номер телефона, мы назначим время звонка и поможем принять решение