Продам кирпичный дом одноэтажный, выполненный из современных материалов, строился по заказу надежным застройщиком.
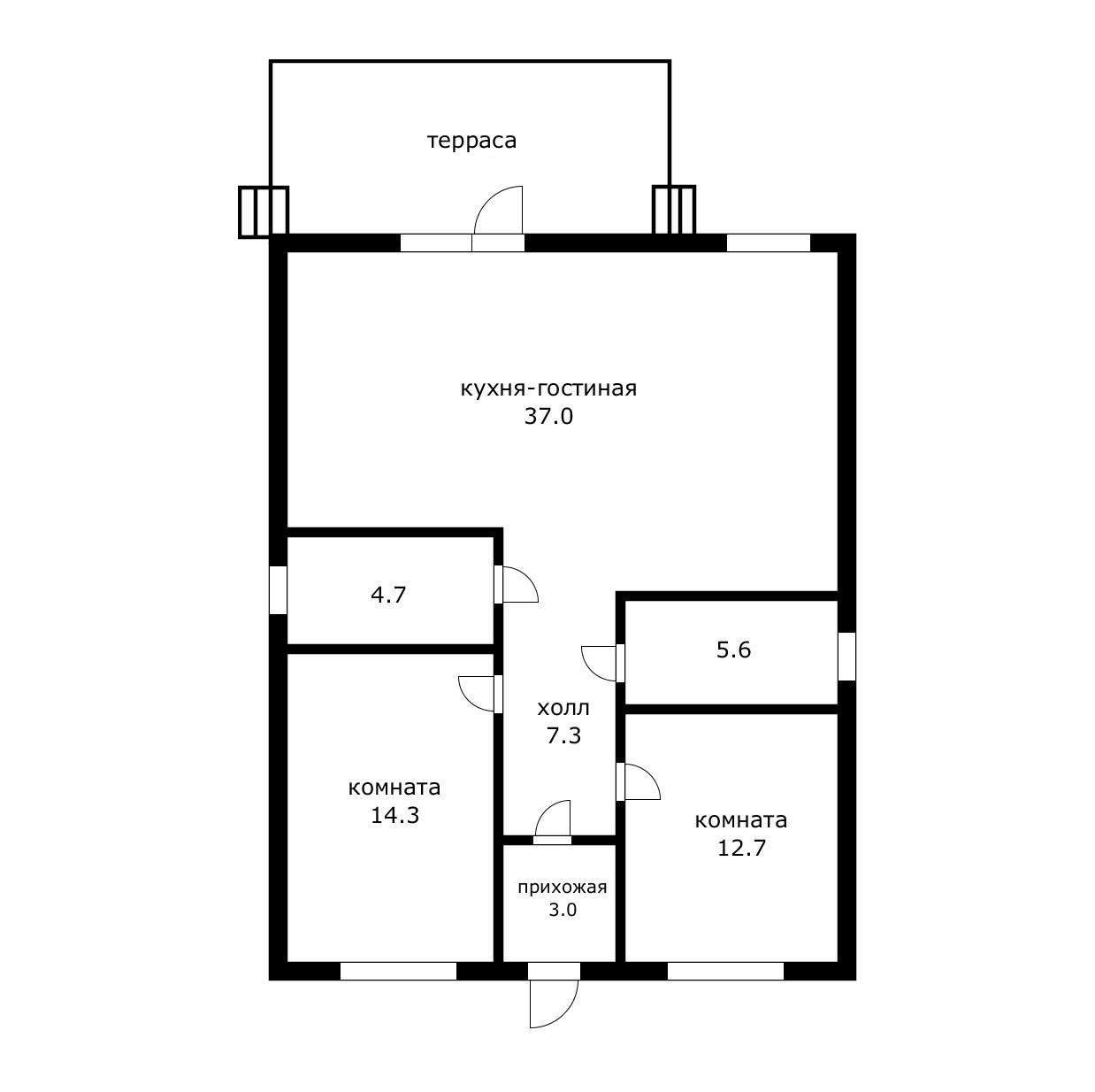
Планировка дома выполнена с умом, позволит разместиться каждому члену семьи и отдохнуть в конце рабочего дня, в наличии 2 спальни с изолированными комнатами, а полноценная кухня-гостиная уместит за большим столом всех друзей. При необходимости возможно сделать перегородку и сделать Кухню столовая - 20 м2 и дополнительно комнату 16 м2
Совмещенный просторный санузел 5,6 м2, коридор объединяет входы в комнаты + прихожая 3 м2, так же в наличии котельная площадью 4,6 м2 с дополнительным санузлом.
В доме выполнен Отличный качественный ремонт, теплый пол в коридоре и санузле, натяжной потолок исполнен в матовом бесшовном варианте. Напольное покрытие ламинат. Стены окрашены в 2 слоя в приятный цвет. Металлопластиковые окна из улучшенного профиля с уже установленными москитными сетками и термонапылением на стеклах. Электрика сделана по всему дому. Отопление - двухконтурный котёл NАVIЕN DЕLUХЕ S 24 кВт. Электрический Бойлер на 100 литров ! Санузел - отделка под ключ.
Возможно освоить Второй этаж 43 кв. м. свободная планировка, с уже выведенным электричеством и отоплением. Двор - тротуарная плитка с парковкой и навесом для нескольких авто. Терраса с навесом при выходе из кухни-столовой. Откатные ворота с электродвигателем, которые открываются с пульта.
Коммуникации - электричество, скважина 35 метров, септик "три кольца" объемом 12 м3. Прописка Краснодар, Прикубанского округа. Детский сад находится в 250 метров, а школа в 500 метрах. Рядом расположены остановки маршрутного транспорта 106а. До ТРЦ Красная Площадь 15 минут езды. Магазин Пятерочка и остановка транспорта в 3 минутах ходьбы от дома.
Звоните! Предложение на рынке отличное!
Арт.1013967887
Оставьте свой номер телефона, мы назначим время звонка и поможем принять решение