Роскошный дуплекс в Новой Адыгее – Ваш идеальный дом!
Предлагаем Вам уникальную возможность приобрести великолепный дуплекс, расположенный на самом въезде в живописный населенный пункт Новой Адыгеи. Этот дом – настоящая находка для тех, кто ценит комфорт и удобство!
Преимущества расположения:
В шаговой доступности несколько торговых центров с разнообразными магазинами.
Новая муниципальная школа и детский сад всего в 10 минутах пешком.
Остановка общественного транспорта всего в 2 минутах от дома.
Уникальность и комфорт: Этот дом полностью готов к проживанию – выполнен качественный ремонт, укомплектован стильной мебелью и современной техникой. Дизайнер продумал каждую деталь, чтобы создать атмосферу уюта и стиля.
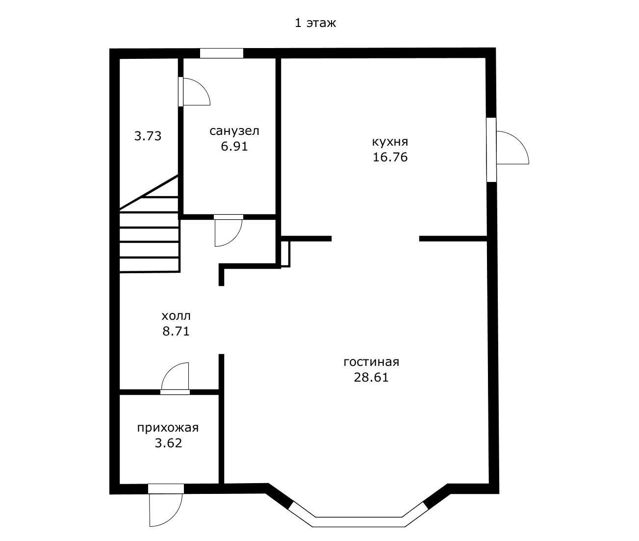
Планировка:
На первом этаже – огромная кухня, объединенная с гостиной, и большой санузел с прачечной.
На втором этаже – три просторные спальни, каждая из которых оснащена дорогой мебелью, а также просторный санузел.
Уютный двор: Во дворе Вас ждет терраса с комплектом мебели и мангалом для барбекю, идеальная для семейных встреч и дружеских посиделок. Есть кладовая во дворе для хранения садового инвентаря и шин. Двор выложен плиткой, озеленен и имеет место для нескольких автомобилей.
Хорошие соседи и спокойная атмосфера – это то, что сделает Вашу жизнь здесь по-настоящему комфортной.
Не упустите шанс стать владельцем этого роскошного дуплекса! Звоните и записывайтесь на просмотр уже сегодня!

Оставьте свой номер телефона, мы назначим время звонка и поможем принять решение