Продается дом в центре города-курорта Приморско-Ахтарске.
Дом 2022 года постройки, 98 кв.м. на участке ИЖС с центральными коммуникациями. Дом строили для себя качественно, использовали недешевые стройматериалы, это видно на фото, в качестве утеплителя использовали экструдированный пенопласт (этот материал совершенно влагонепроницаемый). Стены дома полностью кирпичные и наружные и внутренние, крыша металлочерепица, высота потолков 3,30 м. Большое внимание уделили двору и придомовой территории: двор покрыт плиткой, построили навес, имеется зона барбекю, въезд во двор через автоматические ворота, организовано видеонаблюдение.
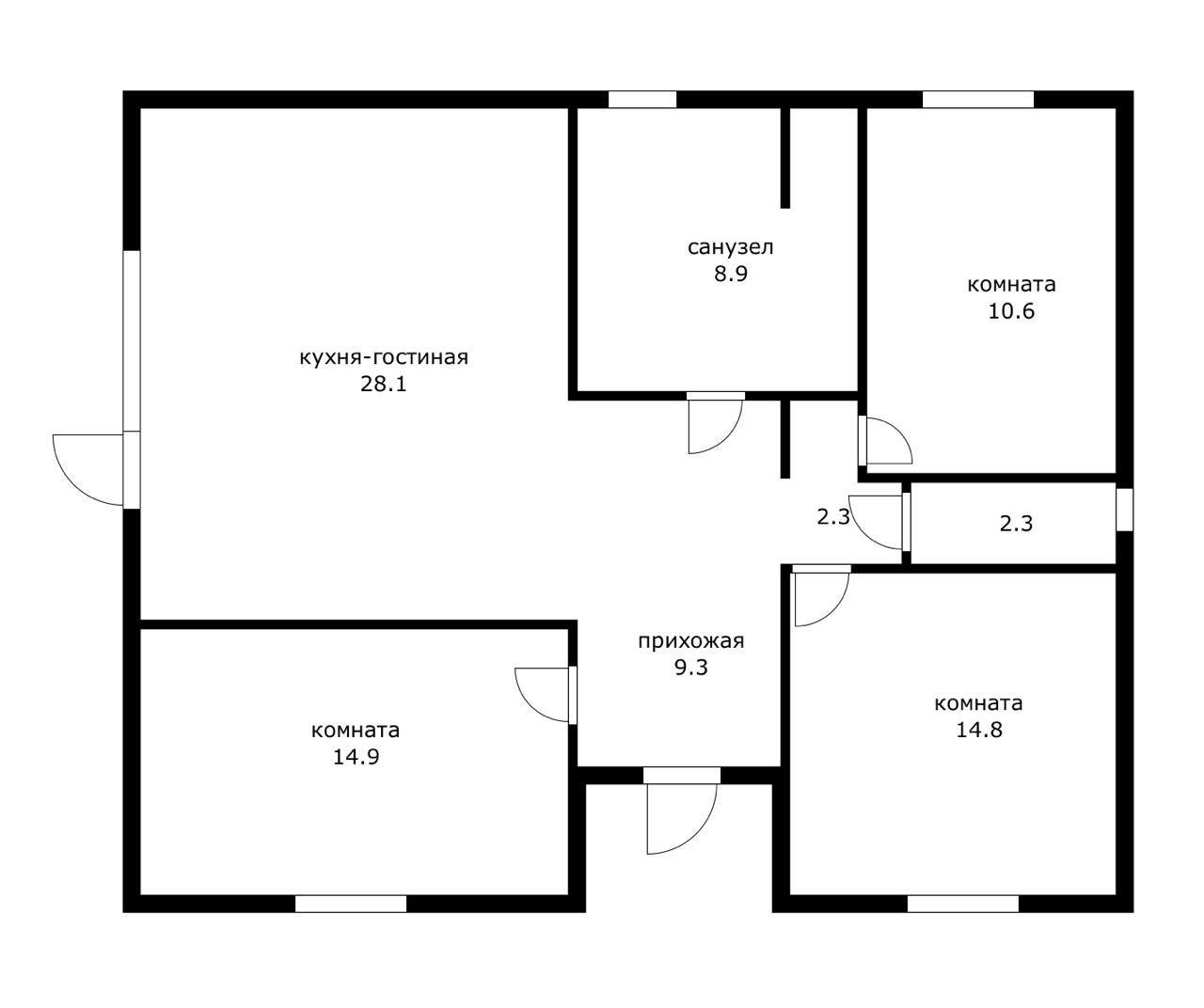
Дом состоит из трех жилых комнат, просторной кухней-гостиной 28 кв.м. с выходом на террасу, большой санузел 9 кв.м., котельной и холла. Дом расположен в удобной локации: в шаговой доступности зеленые кварталы и скверы, школа № 13, д/с № 7, магазины, рынки и вся необходимая для жизни инфраструктура, до моря 800 м, пешком 10 мин.
Если у вас возникли вопросы или желаете посмотреть дом, звоните
Арт.1014116381
Оставьте свой номер телефона, мы назначим время звонка и поможем принять решение