Дом 103 м² + 2.07 сот.
Краснодар, Прикубанский внутригородской округ, Калинино, мкр. Завод Радиоизмерительных Приборов, б-р Интернациональный, 106
13 700 000 ₽
132 367 ₽/м²
Предлагаю Вашему вниманию новый 2-х этажный дом.
Расположен в тихом спальном районе, РИП.
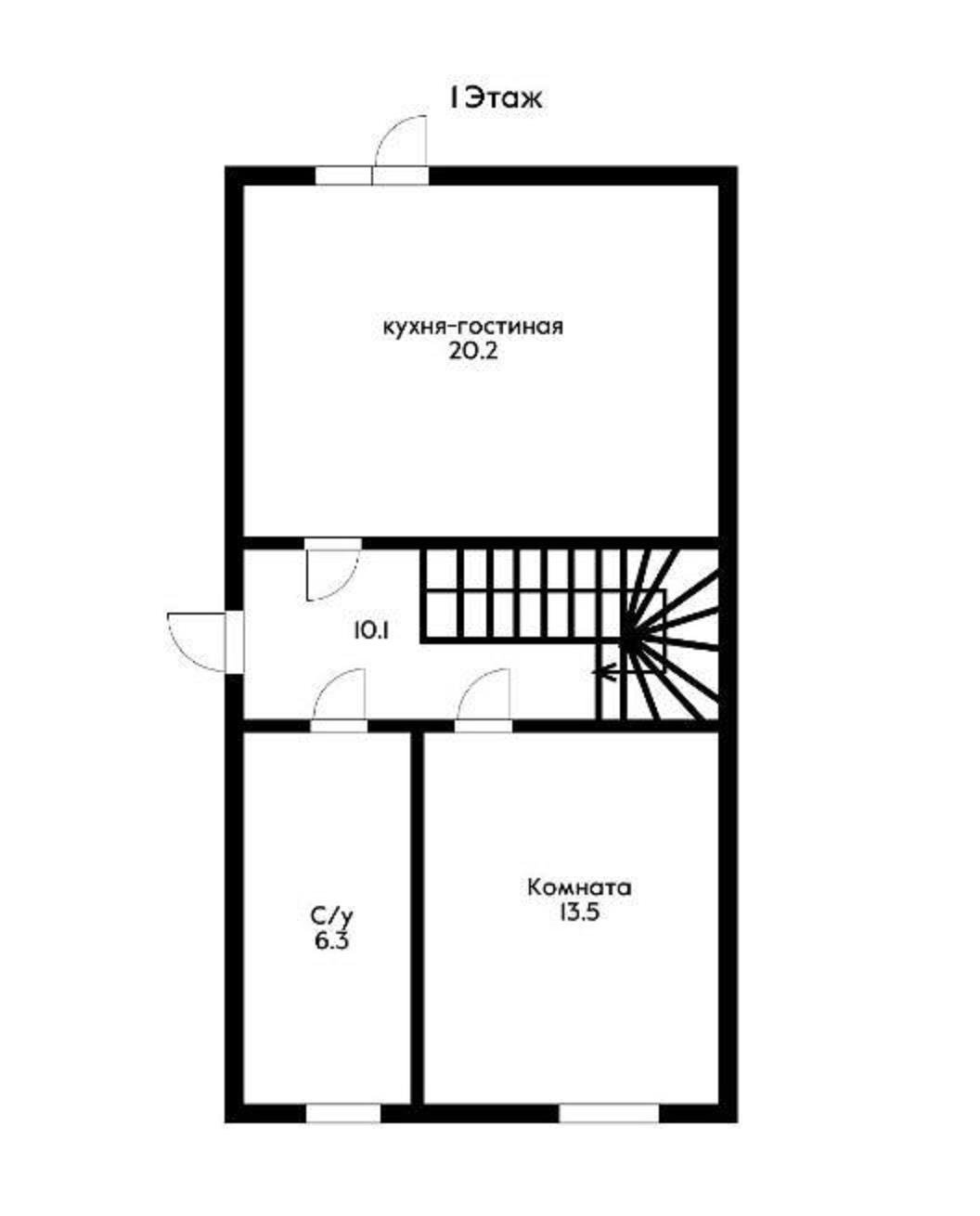
Площадь 103 м2.
В доме 4 изолированные комнаты, большая кухня-гостиная. Дом построен из качественных материалов.
У Вас есть возможность поклеить обои на свой вкус .
Земельный участок 2 сотки ИЖС , зона барбекю, место для Вашего автомобиля.
Все коммуникации центральные (Газ, вода, канализация, свет)
Ипотека подходит!
Рядом 2(две) новые школы, детские сады, "Лента", трамвай, маршрутки, выезд в любую точку города!
Арт.1014150382

Оставьте свой номер телефона, мы назначим время звонка и поможем принять решение