В продаже дом в коттеджном поселке "Николино Парк".
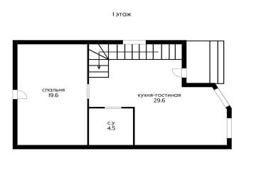
Дом площадью 110 кв.м. с функциональной планировкой - просторная кухня-гостиная с выходом на задний двор, три комнаты, раздельный санузел и гардеробная комната. Построен по технологии техноблок, которая обладает огромным количеством преимуществ. Строили для собственного проживания с полным контролем строительства и использованием высококачественных материалов. Дом расположен на участке 4,5 сотки, на участке удачно поставлен таким образом, что на заднем дворе можно максимально эффективно использовать пространство.
Расположение дома в коттеджном поселке очень удачное - в 5 минутах ходьбы превосходная парковая зона с дорожками, спортивными и детскими площадками, где можно с удовольствием провести время.
Сам коттеджный поселок в представлении не нуждается - закрытая охраняемая территория, бетонированные дороги, центральные коммуникации. В непосредственной близости есть школа, детский сад, поликлиника, магазины. Все это обеспечит вам комфортное проживание в окружении приятных соседей.
Не упустите шанс приобрести отличный дом по привлекательной цене! Записывайтесь на просмотр!
Арт.1014287595
Оставьте свой номер телефона, мы назначим время звонка и поможем принять решение