Предлагаю вашему вниманию просторный одноэтажный дом, расположенный в экологически чистом районе!
ГЛАВНЫЕ ПРЕИМУЩЕСТВА:
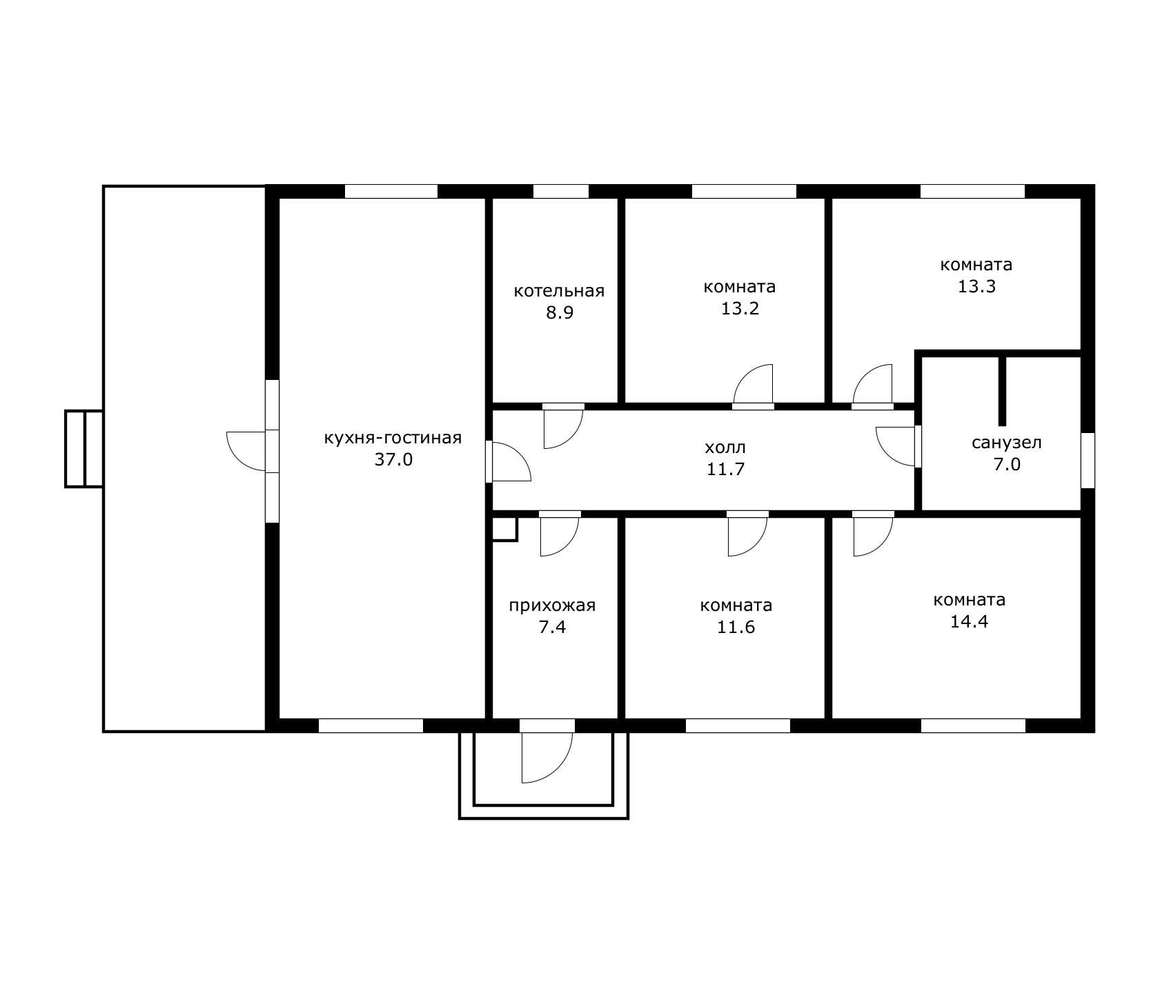
• Просторная планировка с 4-мя спальнями
• Функциональная кухня-гостиная
• Удобная котельная с постирочной зоной
• Современная ванная комната
• Уютная терраса для отдыха
• Большой чердак для хранения
О ДОМЕ:
Общая площадь: 7,5 соток
Качественный фундамент
Все окна с двухкамерными стеклопакетами
Надежная кровля
КОММУНИКАЦИИ:
Собственная скважина 27 метров с системой очистки
Двухкамерный септик
Электричество
МЕСТОПОЛОЖЕНИЕ:
Экологически чистый район
Тихая улица
Хорошая транспортная доступность
Все коммуникации подключены и работают.
Звоните прямо сейчас для организации просмотра!
Арт.1014322401

Оставьте свой номер телефона, мы назначим время звонка и поможем принять решение