Предлагаем вашему вниманию уникальное домовладение площадью 155 м² с террасой, качественным ремонтом и стильной мебелью на участке 4 сотки ИЖС с газом!
Преимущества:
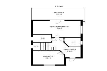
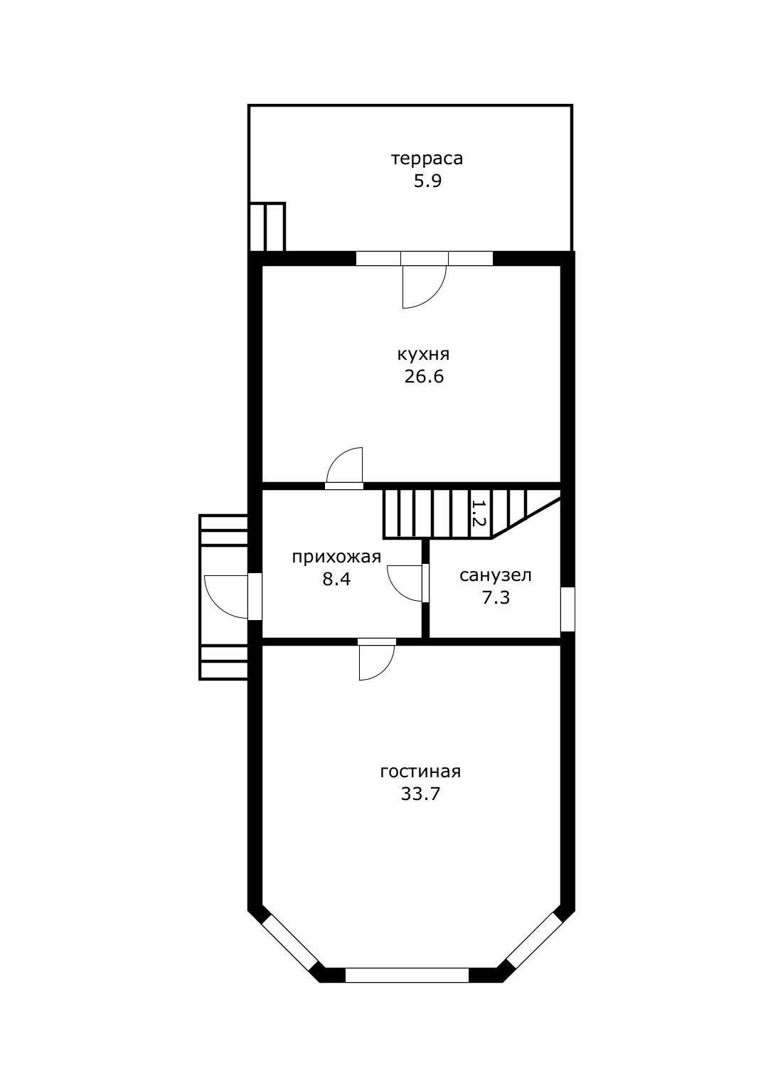
• Удобная планировка:
• Первый этаж: просторная кухня-гостиная 26,6 м² с выходом на застекленную террасу, уютная гостевая комната и современный совмещенный санузел.
• Второй этаж: три светлые спальни и санузел.
• Современный ремонт: выполнен с использованием высококачественных материалов и индивидуальной мебели. Кухня с каменной столешницей и островом, полностью оборудована дорогой бытовой техникой — всё остается!
• Комфорт круглый год: система теплого пола на первом этаже, инверторные сплит-системы в каждой комнате.
Земельный участок:
• Площадь 4 сотки (10x40 м) с большим количеством свободного пространства как спереди, так и сзади дома.
• Мощность электроснабжения — 15 кВт (3 фазы), сетевой газ, септик, скважина с системой фильтрации.
• Уникальная система автополива с WiFi и видеонаблюдение по периметру для вашей безопасности.
Парковка и зона отдыха:
• Надежный навес для нескольких автомобилей и автоматические ворота.
• Лаунж-зона для отдыха с мангальным комплексом, зеленый газон и ландшафтный дизайн.
Инфраструктура:
• Удобное расположение в пос. Северный, всего 7 км от центра Краснодара. В шаговой доступности: детский сад, школа №65, резиденция с бассейнами «Санторини», фитнес-центр «Авакс».
• Быстрый выезд на Ростов, море и горы — идеальное место для жизни!
Не упустите свой шанс! Документы готовы, дом строился с разрешением на строительство, без обременений и налогов. Звоните прямо сейчас и запишитесь на просмотр! Ваш новый дом ждет вас!
Арт.1014363158
Оставьте свой номер телефона, мы назначим время звонка и поможем принять решение