Дом 127 м² + 3.5 сот.
Краснодар, Карасунский внутригородской округ, ж/м Пашковский, ул. Карасунская, 212к1
10 000 000 ₽
78 431 ₽/м²
В продаже трехэтажный таунхаус!
Частично сделан ремонт, основная часть дома в предчистовой отделке.
На первом этаже: холл, кухня- столовая с выходом на задний дворик, гостиная, ванная комната, гардероб.
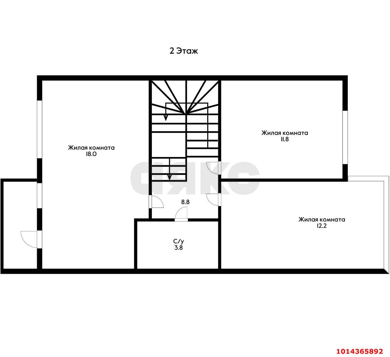
На втором этаже: три большие просторные комнаты, сан. узел.
На третьем этаже: большая спальня, сан. узел, выход на открытую террасу и баня!
Мансарда обустроена для хранения вещей. Есть зона барбекю.
Отопление газовое, центральное водоснабжение и септик.
Дом оснащен пультовой сигнализацией.
Общий двор огорожен, есть два парковочных места.
Звоните, расскажу всё в подробностях!
Арт.1014365892
Оставьте свой номер телефона, мы назначим время звонка и поможем принять решение