Продается новый дом с новым ремонтом, мебелью и техникой.
Все коммуникации есть! Газ подключен. Скважина, септик, интернет (оптоволокно).
Сделан качественный ремонт с дорогими материалами.
Участок полностью благоустроен:
- двор выложен плиткой;
- красивая оборудованная терраса с зоной отдыха;
- мангальная зона сделана на заказ с гранитной столешницей;
- навес на 3 машины;
- на заднем дворе построена вместительная бытовка.
Автоматические ворота, видеодомофон, видеонаблюдение по периметру двора и на воротах (управление со смартфона). Все сливы у дома выведены в индивидуальные септики, поэтому во дворе нет никакой лишней влаги.
Высажена клубника, черешня и абрикос. Установлена система очистки воды.
Дом с дороги не топит, вода не стоит.
Дом находится на уклоне, поэтому от дома всегда сухой асфальт. В самом СНТ тоже стоят камеры на улицах, асфальтированная дорога по улице, освещение улиц.
В пешей доступности частный детский сад, несколько пунктов маркетплейсов, 2 аптеки, много магазинов продовольственных и строительных, на въезде магазин «Магнит».
Проблем с электричеством нет.
Первые и единственные жильцы, ремонт делали для себя, не экономили. Недавно обновили краску на стенах. Мебель в кабинете сделана под заказ и остается покупателю.
Кухня также останется вместе с техникой (духовой шкаф, встроенная микроволновая печь, вытяжка, газовая плита, холодильник), диван и стол со стульями также остаются новому хозяину. Дополнительно к отоплению мы разъединили теплый пол и батареи, поэтому, если есть маленький ребенок, теплый пол может быть включен постоянно и не будет жарко, как при включенных батареях.
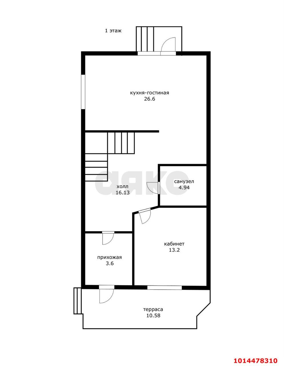
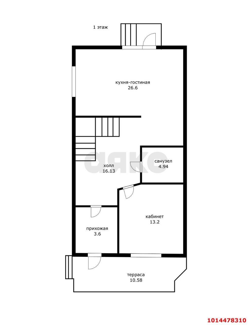
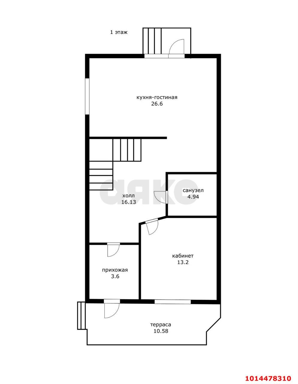
Бонусом под лестницей сделана небольшая кладовая.
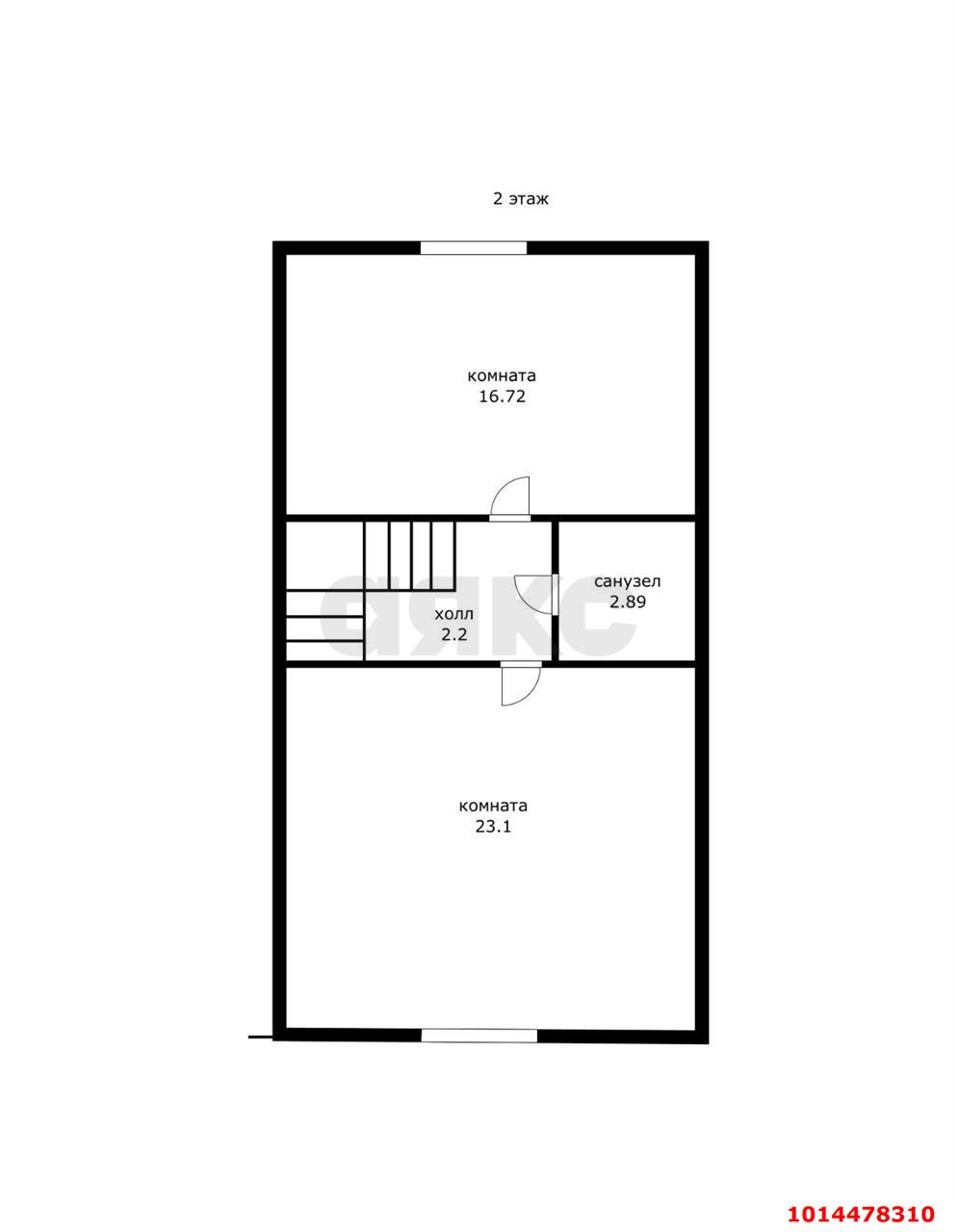
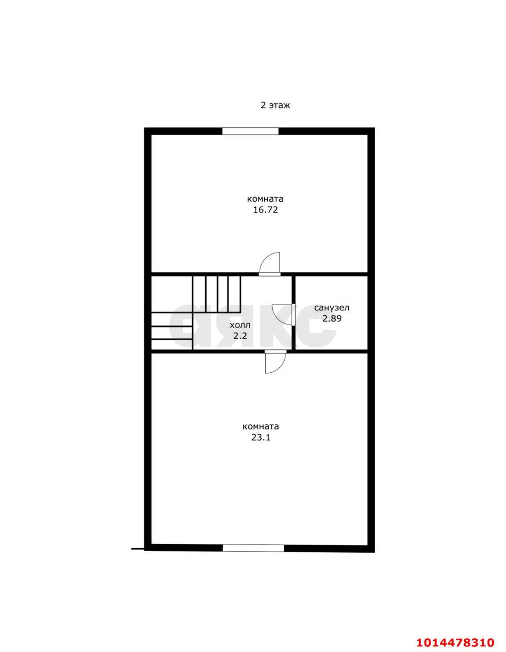
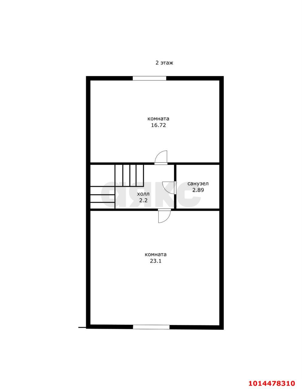
На втором этаже в детской встроены шкафы, два распашных с полочкой и 4 ящика, что очень удобно, разложить все вещи и не занять место громоздким шкафом. На втором этаже находится второй дополнительный санузел. В спальне остается кровать, шкаф (делали на заказ), тумбочка и туалетный столик со стулом и гримерным зеркалом.
В каждой комнате, кроме детской, установлены сплиты. В гостиной и спальне сделаны декоративные гипсовые панели. Лестница из керамогранита и деревянные перила, которые изготавливали по индивидуальному дизайну. Шкаф в коридоре сделан под заказ и остается в доме, поэтому почти все у вас будет индивидуальное.
В прихожей останется вся мебель. В доме проведен интернет (оптоволокно), установлена «Ресанта» (от перебоев в напряжении).
Дом в собственности 5 лет.
Отличный вариант, чтобы заехать и сразу жить, не тратя больше никаких средств!
Звоните, чтоб посмотреть дом вживую!
Арт.1014478310
Оставьте свой номер телефона, мы назначим время звонка и поможем принять решение