Дом 350 м² + 7 сот.
Краснодар, Западный внутригородской округ, мкр. Центральный, ул. Фрунзе, 48
65 000 000 ₽
185 714 ₽/м²
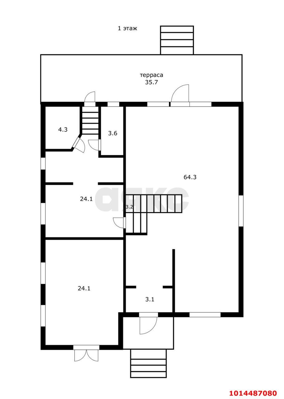
Великолепный дом на большом участке в самом центре Краснодара.
Дом облицован камнем, который ценится во все времена и никогда не теряет внешний вид, поэтому дом выглядит безупречно. В доме 5 комнат + шикарный зал и кухня-гостиная с выходом на открытую террасу и задний двор, где можно пожарить шашлыки в прекрасной зоне барбекю в тишине от шумного города. Ремонт в доме сделан из натуральных и качественных материалов, расположен в тихом месте, не на проезжей части, а большой двор позволит легко припарковать множество автомобилей.
В цокольном этаже спортивный зал. Во дворе дополнительная летняя кухня с санузлом и кладовой.
Арт.1014487080
Оставьте свой номер телефона, мы назначим время звонка и поможем принять решение