Продам отличный двухэтажный, кирпичный дом на участке 7 соток.
Автоматические ворота на въезде во двор, кирпичный забор, видеонаблюдение, большой навес перед домом на две машины, зарядное устройство для автомобилей, видеонаблюдение по периметру, в доме и за периметром двора, бесшовная зона покрытия вайфая (стабильный сигнал в любой части дома и участка).
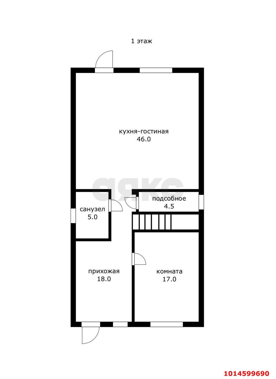
Дом состоит из трёх уровней: подвальное помещение, где расположены система фильтрации водоснабжения(как центрального, так и воды из скважины), стабилизаторы электричества, генератор, который включается автоматически, а так же аккумуляторные батареи, на случай отключения электричества. На первом этаже располагается кухня-гостиная с выходом на задний двор, жилая комната и санузел, на втором этаже ванная комната, три спальные комнаты и кабинет.
На заднем дворе мангальная зона, баня, искусственный газон и самая главная изюминка-круглогодичный собственный бассейн. Баня каноничная - на дровах. Так же отдельно к бане проведён газ для нагрева воды в бассейне, а так же установлено автоматическое фильтрационное оборудование для бассейна с автоматической подачей необходимых компонентов для поддержания оптимального состава воды.
Электричество 15КВт(3 фазы), канализация септик(есть возможность сделать центральную, если это важно для вас), крыша-метало черепица.
Ещё один несомненный плюс-остаётся полностью вся мебель и техника, вам останется только занести свои личные вещи и счастливо жить в доме вашей мечты!
Арт.1014599690
Оставьте свой номер телефона, мы назначим время звонка и поможем принять решение