Продаю уютный двухэтажный жилой дом в районе 40 лет Победы, ул. Декабристов.
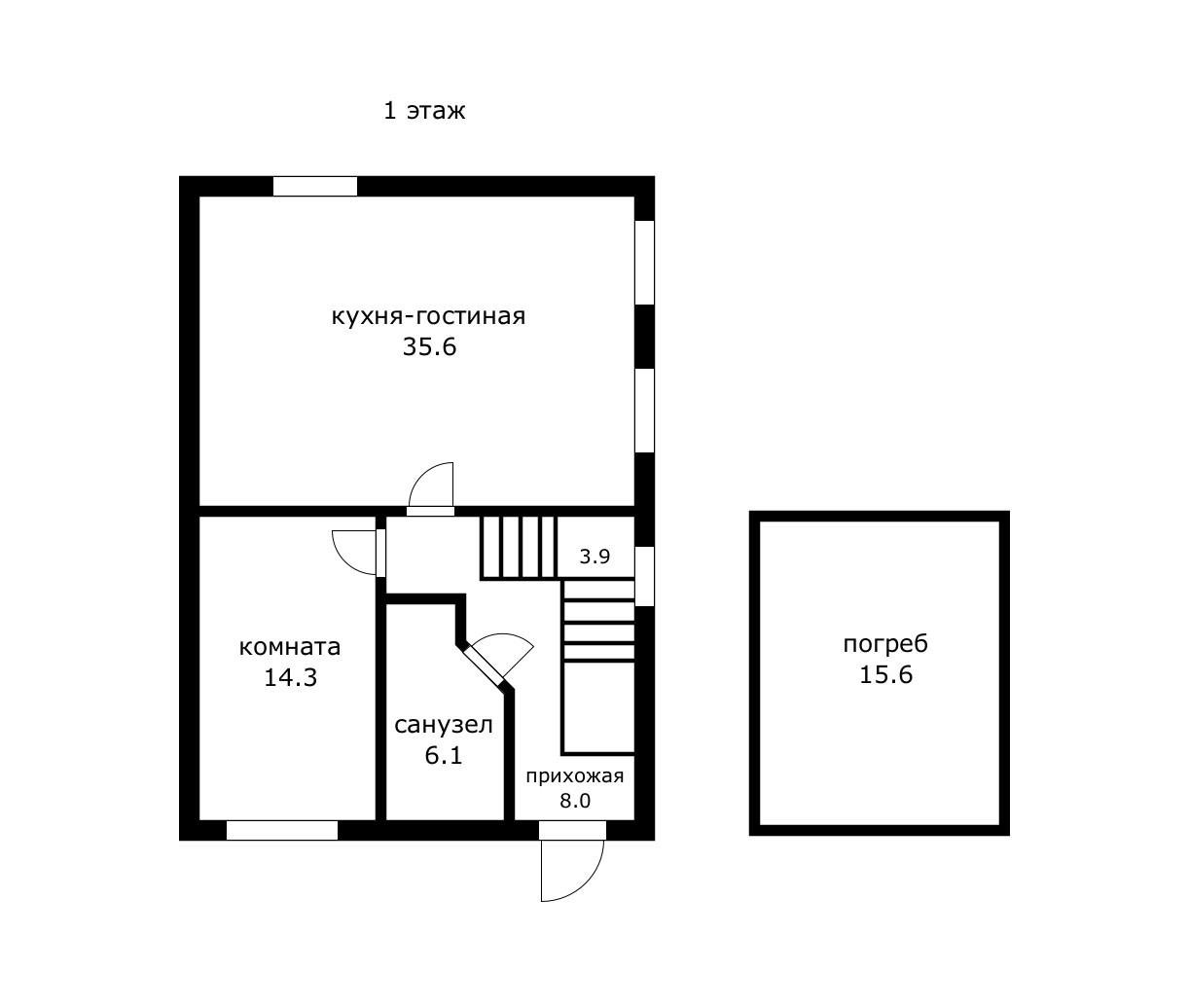
Общая площадь 180квм, кухня- 25квм, 3 сотки земли, 4 комнаты, два с/у, есть веранда, мансарда с панорамными окнами и беседка с мангальной зоной.
Дом очень качественный, строили для себя: толщина стен полтора кирпича, высокие потолки -3м,снаружи утеплен и обшит сайдингом, проводка медная и очень качественная, отопление автономное - газовый котел, дом очень теплый зимой и прохладный летом, на втором этаже установлены три сплит-системы, а в зале - действующий камин, водопровод центральный, газ центральный , канализация - два септика( на 5 и 4 куба), крытое машиноместо с отдельными воротами, декоративный прудик. Дорожки перед домом и от калитки выложены диким камнем и имеется освещение.
Район очень тихий, вокруг - частный сектор, рядом два парка - 10 минут пешком до Чистяковской рощи, 20 пешком - до парка Галицкий. В 2 минутах трамвайная остановка, которая позволит передвигаться без пробок в любое время суток, до центра города ехать 10 минут, в 5 минутах - автобусная остановка в любой район города. В 5 минутах - школа, в 10-ти - два детских садика. Развитая инфраструктура: множество продуктовых и овощных магазинов, аптеки, кафе, рестораны, поликлиника, несколько стоматологий, почта, рядом с домом пункты выдачи вайлдберис и озон. Хорошие соседи.
Документы готовы к сделке, 1 взрослый собственник ,вся сумма в договоре.
Арт.1014626600
Оставьте свой номер телефона, мы назначим время звонка и поможем принять решение