Продается двухэтажный дом площадью 163 м² на участке 6,15 соток.
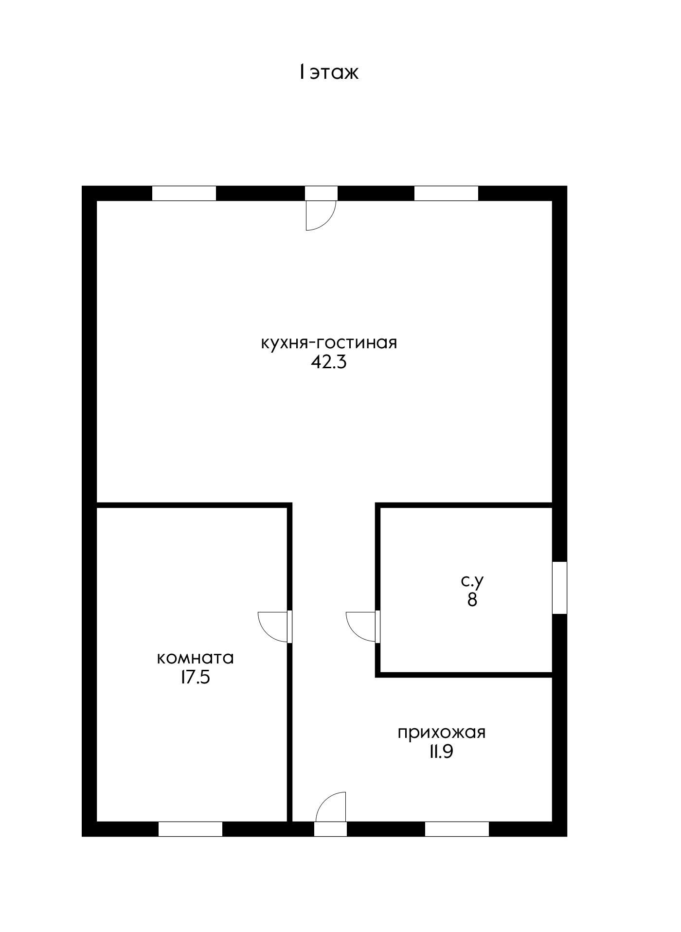
Первый этаж:
- Прихожая
- Кухня-гостиная (48 м²)
- Санузел с душевой кабиной
Второй этаж:
- Гостиная
- Две спальни
- Большая ванная комната
На участке расположены:
- Капитальная хозяйственная постройка для хранения инвентаря
- Летняя кухня
- Бойлерная
Территория находится под видеонаблюдением. Электричество – три фазы, Wi-Fi.
Дом оснащен скважиной глубиной 35 метров и переливным септиком на 15 кубических метров. Для автомобилей предусмотрен въезд с навесом. По периметру установлен металлический забор, также есть сарай для птицы.
Дом находится в хорошем состоянии и подходит для постоянного проживания. В СНТ проведена газификация, планируется подключение к газопроводу в 2026 году. Широкие улицы и магазин в пяти метрах от дома делают его удобным для жизни.
Арт.1014953580
Оставьте свой номер телефона, мы назначим время звонка и поможем принять решение