Предлагается шикаpный особняк 450 м² в элитном, охраняемом коттеджном поселке-- CНТ "Пpигород". Пpедлaгaющий дoма пpeмиум-класса c вeликолeпным дизaйном и выcoким уровнeм бeзoпacности.
Особенности проекта:
Расположен в закрытой охраняемой зоне с круглосуточной охраной и видеонаблюдением.
Постройка выполнена из высококачественных строительных материалов с особой прочностью стен толщиной 80 см, превосходно защищающих от холода и посторонних звуков.
Внутри просторные и светлые комнаты с высокими потолками (до 8 метров) в гостиной, подчеркивающими элегантность интерьера.
Практически каждое помещение оснащено тёплыми полами, создающими дополнительный комфорт и тепло.
Первый этаж оснащен просторным встроенным гаражом на две машины.
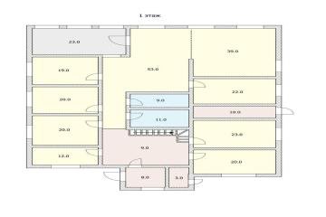
Что включено в проект первого этажа:
Гостиная с изысканным камином.
Просторное помещение столовой.
Кабинет для деловых встреч и отдыха.
Игровая бильярдная, рассчитанная на профессиональный 12-футовый стол.
Два подсобных помещения для хозяйственного инвентаря.
Бойлерная с отдельным выходом.
Прачечная с современным оборудованием.
Туалетная комната для гостей.
Второй этаж — зона личного пространства:
Две прекрасные детские комнаты с индивидуальными гардеробными и балконом.
Спальня хозяина с личным гардеробом и выходом на панорамный балкон.
Большая ванная комната для малышей и подростков.
Холл, подходящий для организации детских игровых зон или оранжереи-зимнего сада.
Инженерные коммуникации:
ЦЕНТРАЛЬНОЕ водоснабжение и природный газ обеспечивают комфорт в любом сезоне.
Электрическая мощность в 15 кВт (три фазы) поддерживает бесперебойную подачу энергии.
Встроенная система "Центрального пылесоса"!
Внешняя привлекательность и комфорт:
Земельный участок размером 10 соток открыт для воплощения ваших фантазий в области ландшафтного дизайна и устройства придомового пространства.
Особенностью комплекса является наличие развитой инфраструктуры: магазинов, кафе, медицинских учреждений и спортивных площадок.
Расположение:
Удаленность от центра Краснодара всего около 30 минут пути, что создает баланс между отдыхом на лоне природы и возможностями активной городской жизни.
Про документы:
Один зарегистрированный собственник.
Документы подготовлены и готовы к заключению сделки.
Цена без торга.
Подробности по телефону, звоните.


Офис на Рашпилевской, 3 этаж
+7 (989) 000-12-59Оставьте свой номер телефона, мы назначим время звонка и поможем принять решение