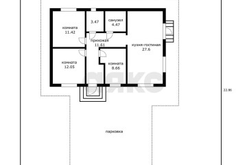
Дом 140 м² + 6 сот.
Южный, ст Ивушка, ул. Клубничная, 17
9 000 000 ₽
64 286 ₽/м²
В п. Южном продаю 1- этажный большой дом 140 мкв на земельном участке 6 соток правильной формы.
в дом заведено электричество, газ центральный по меже, переливной септик, ленточный фундамент, стены из отсева (блок, теплый и прочный материал), во дворе много места для использования под баню, бассейн и тд.
Рядом новая школа, детский садик, хорошие соседи.
Звоните.
Арт.1015015065

Офис на Дзержинского
+7 (989) 000-12-57Оставьте свой номер телефона, мы назначим время звонка и поможем принять решение