Продаётся уютный загородный дом — идеальное сочетание комфорта и природной красоты!
Представляем вашему вниманию прекрасный дом, построенный с любовью для постоянного проживания. Это не просто недвижимость — это место, где можно создать свой особенный мир вдали от городской суеты, но при этом сохранить все преимущества современной инфраструктуры.
Основные характеристики:
земельный участок: 10 соток;
площадь дома: 208 кв. м;
площадь столярной мастерской: 100 кв. м (может быть переоборудована под любые нужды).
Дом полностью готов к проживанию: выполнен качественный ремонт, установлена современная техника и мебель. Возможна прописка (регистрация).
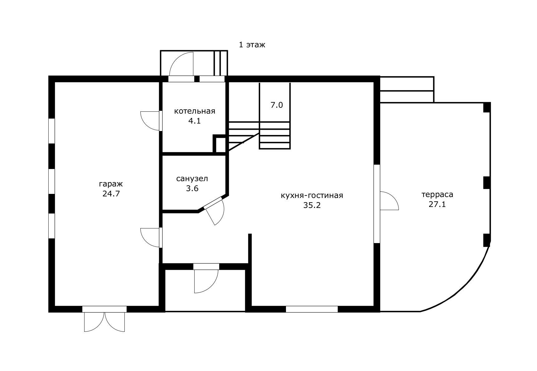
1‑й этаж: просторная гостиная, совмещённая с кухней; уютная прихожая; санузел с душевой кабиной; гараж; котельная; выход на террасу.
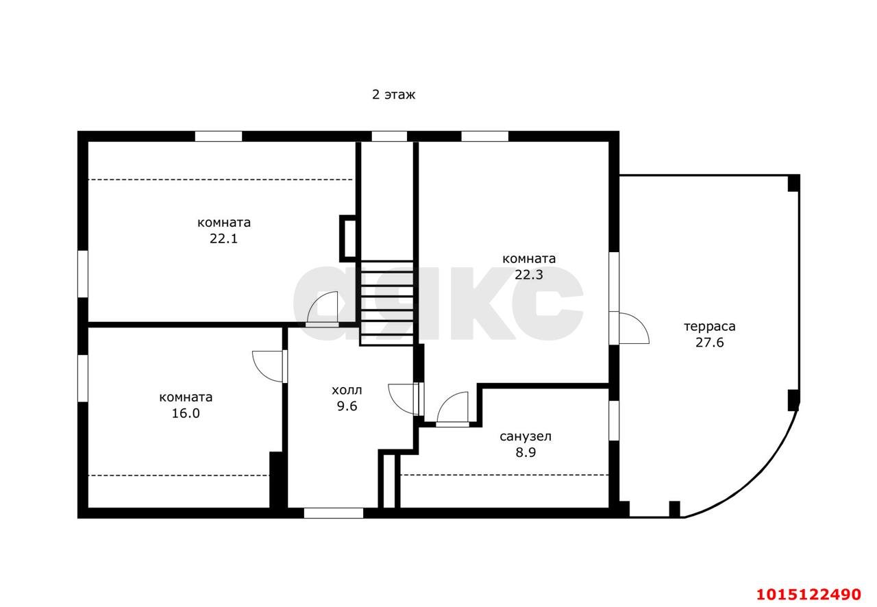
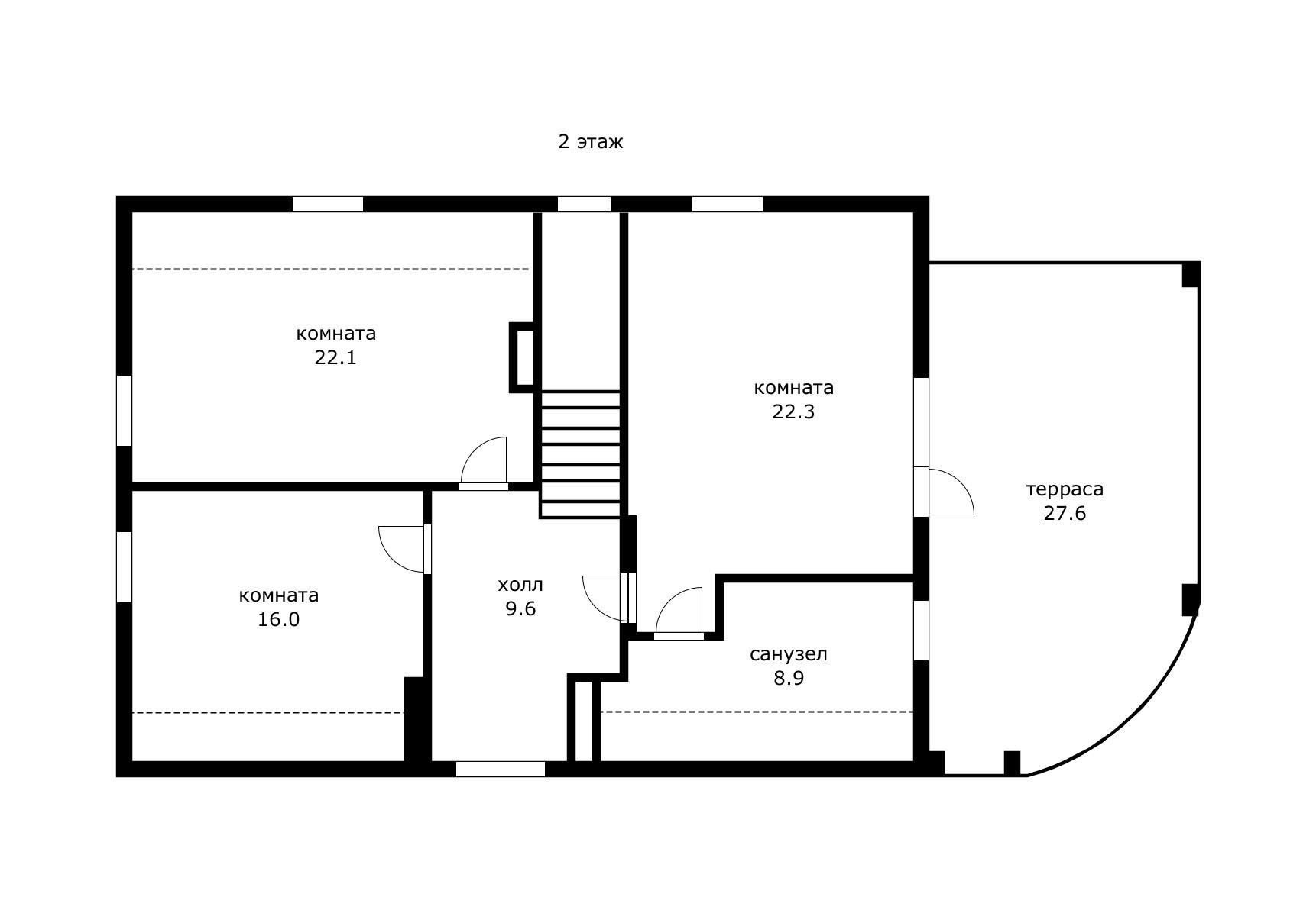
2‑й этаж: три светлые спальни; санузел с ванной; коридор; терраса с панорамным видом.
Дополнительные постройки:
мангальная зона — отличное место для семейных посиделок и встреч с друзьями;
уличный туалет;
столярная мастерская: капитальное нежилое помещение с высотой потолков от 3 до 6 м, двумя выходами, подведёнными холодной водой и отоплением.
Коммуникации и безопасность:
газ проведён;
водоснабжение — собственная скважина с системой умягчения и фильтрации воды;
видеонаблюдение и сигнализация;
откатные ворота с электроприводом.
Благоустройство участка:
двор вымощен плиткой;
продуманный ландшафтный дизайн;
система автополива;
плодово‑ягодный сад: малина, красная и чёрная смородина, вишни, груши, яблони, грецкий орех, шефердия, розы и другие кустарники.
Расположение и инфраструктура:
50 км до Краснодара;
100 км до моря;
ж/д станция в станице Северской;
асфальтированная дорога почти до ворот;
в шаговой доступности — продуктовые магазины и остановка общественного транспорта;
до детского сада и школы — 10 минут на машине.
Природа и отдых:
Район славится чистым горным воздухом, живописными пейзажами и богатыми природными ресурсами:
лес (грибы, ягоды);
река Убин;
панорамные виды с горы Собер‑Баш;
дольмены и водопады.
Для активного отдыха доступны:
пешеходные и велосипедные маршруты;
катание на квадроциклах и маунтин‑байках;
конная ферма «Владимировка»;
спортивная агроферма «Альпинистский мёд».
В 5 минутах езды строится всесезонный курорт «Собер‑Баш», который будет включать:
термальный комплекс;
спа‑центр;
винодельню и виноградники;
отель и ресторан;
часовню;
детские и спортивные площадки.
Близлежащие станицы (Северская и Азовская) обеспечивают полную инфраструктуру: школы, детские сады, аптеки, больницу, рынок, спортивные секции и магазины.
Все документы готовы к сделке. Объект без обременений.
Не упустите шанс стать владельцем дома в одном из самых живописных и перспективных мест Краснодарского края!
Арт.1015122490
Оставьте свой номер телефона, мы назначим время звонка и поможем принять решение