Продам загородный дом в Предгорьях Кавказа - в Северском районе (пгт Ильский).
Дом располагается в уникальном, красивейшем, живописном месте - называется Крабовая щель. Кругом только исключительно лес и серебряный ручей. Улица тупиковая, не проездная - всего 20 домов, это природа-охранная зона. Дом находится между дубовой и акациевой рощей.
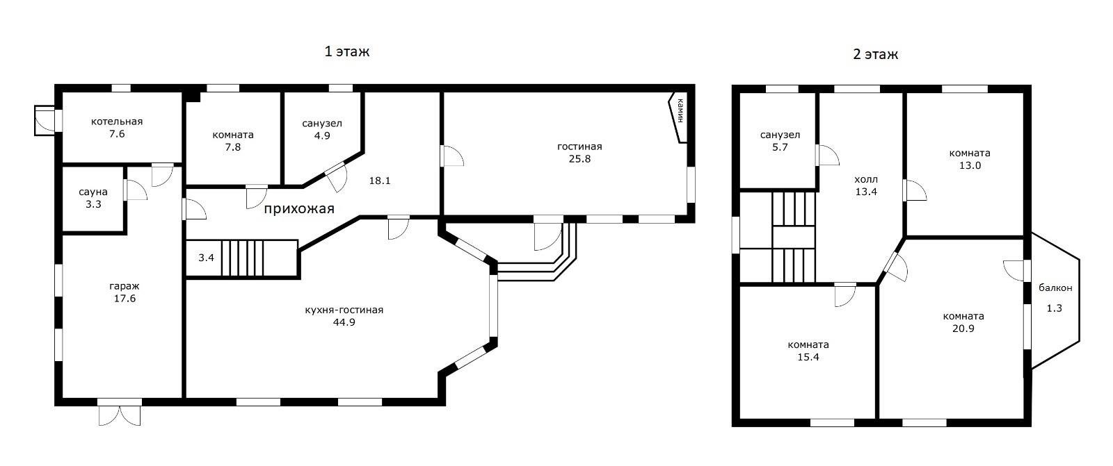
Весь участок 14 соток, дом 202 м2. На самом участке посажено более 20 различных сосен. Словами и не рассказать, что это за место и что это за воздух. Выйдя на улицу или открыв окно, вы слышите только пение птиц и журчание ручья.
Что касаемо дома, он очень хорошего качества, сделан из чистого кирпича. В доме выполнен классический ремонт в светлых постельных тонах. При продаже дома остаётся практически все. Так же в доме находится отапливаемый гараж, баня, каминный зал. На участке есть летняя кирпичная беседка.
Коммуникации: Газ - центральный; Свет - 3 фазы 15 кВт; Вода - скважина; Канализация - септик. Ещё раз хочу сказать, что это уникальнейшее место и классный дом, посмотрев его, поверьте, что вы из него уже не захотите уходить.
Звоните! Успейте купить!
Арт.1015151935
Оставьте свой номер телефона, мы назначим время звонка и поможем принять решение