Дом 296 м² + 3.85 сот.
Краснодар, Западный внутригородской округ, мкр. Центральный, ул. Братьев Игнатовых, 5
49 000 000 ₽
165 541 ₽/м²
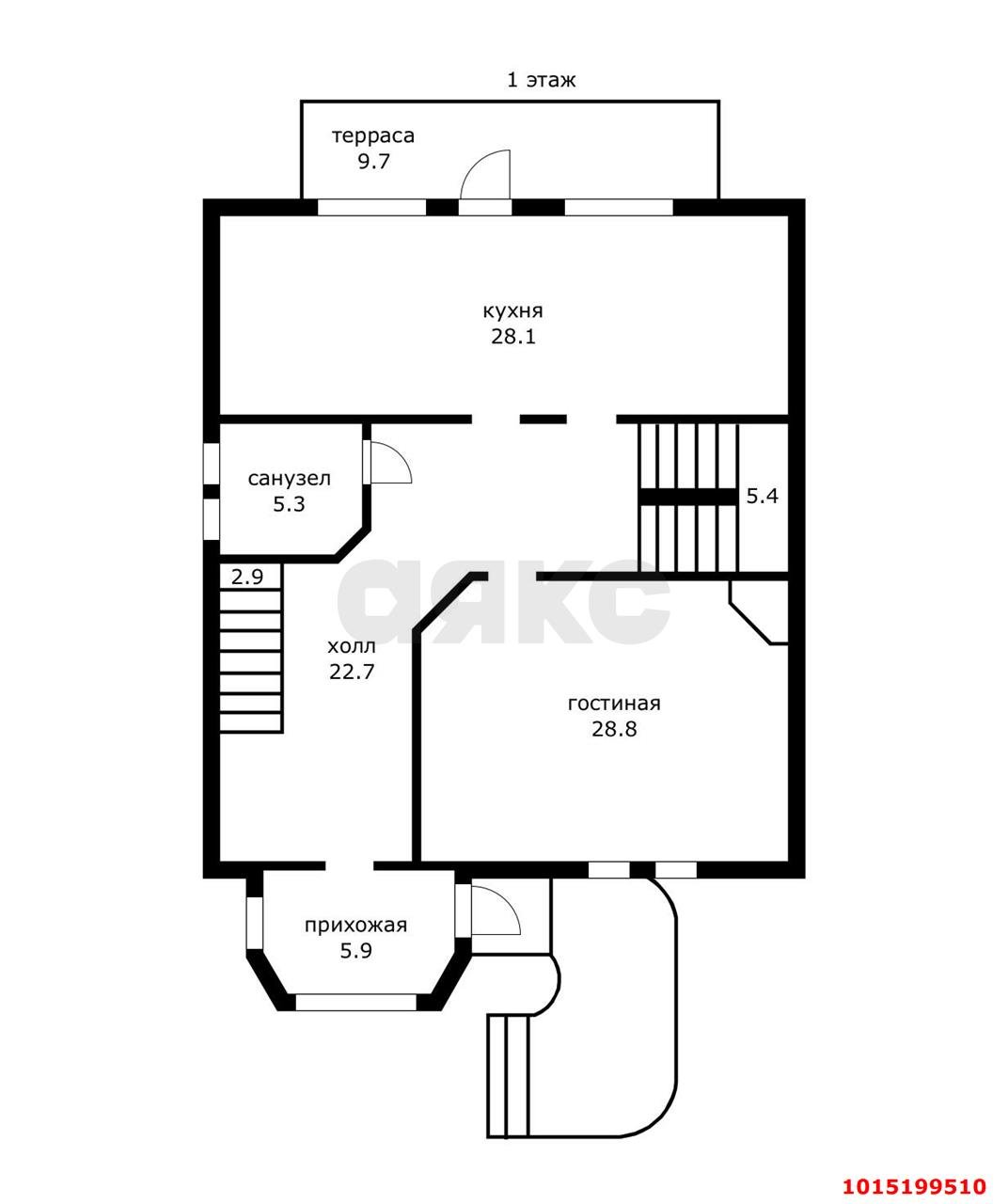
Продается трехэтажный кирпичный дом в центре Краснодара.
Улица дома тупиковая ,не будет загазованности и шум от проезжих машин. В доме пять комнат, два сан/узла, есть бассейн, сауна, зона отдыха, зона барбекю, гараж.
Все что на фото остается. В шаговой доступности есть все необходимое для комфортного проживания.
Звоните, показ в любое время.
Арт.1015199510
Оставьте свой номер телефона, мы назначим время звонка и поможем принять решение