Дом 97 м² + 3.15 сот.
Старомышастовская, ул. Космонавтов
6 700 000 ₽
68 718 ₽/м²
Новый дом !
Подходит под семейную ипотеку 6 % !!!
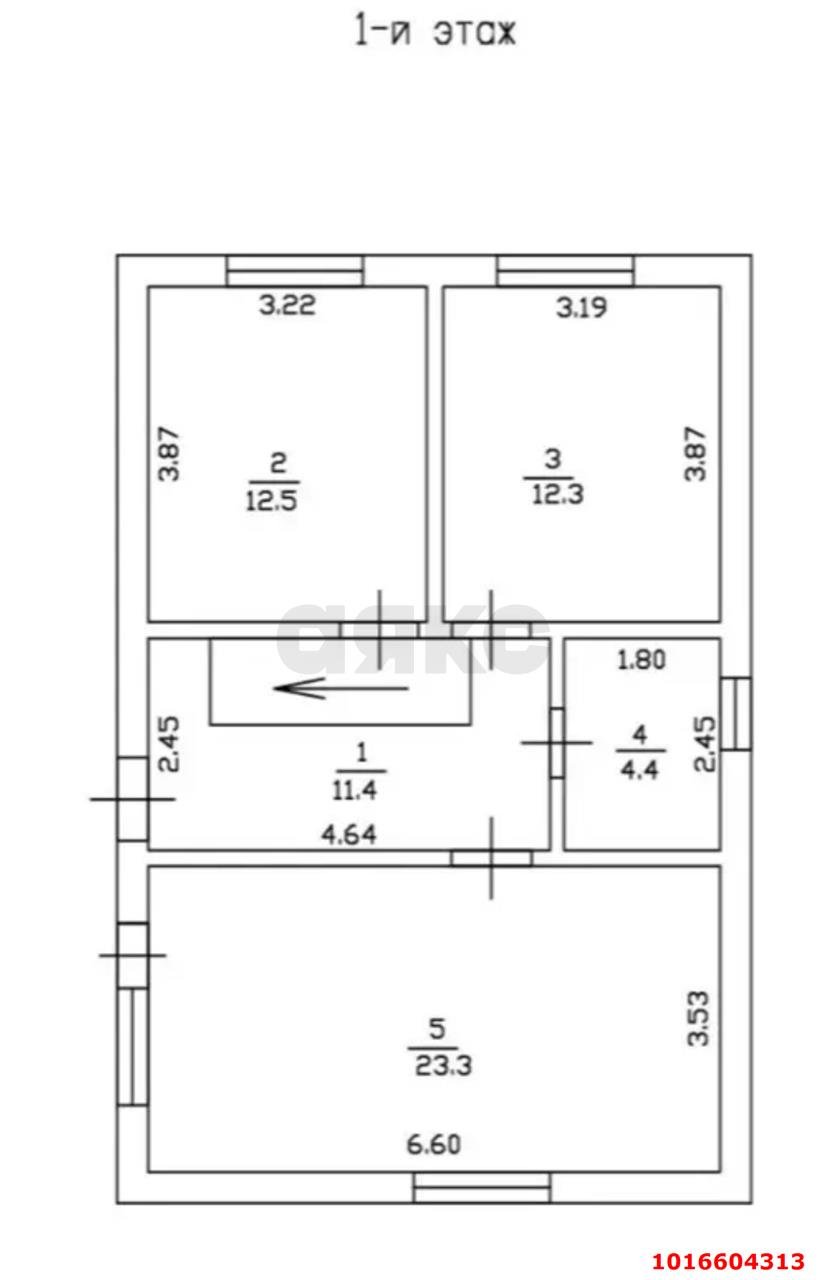
Продаётся дом с мансардным этажом общей площадью 97.5 м.кв
Большая придомовая территория
На первом этаже две спальни , большая кухня-гостиная и санузел
В кухне-гостиной витражное остекление с выходом к мангальной зоне
На втором этаже возможно организовать две комнаты или оставить одно большое помещение
площадью 30 м.к.в.
Газ по меже , водоснабжение центральное , свет 15 кв , септик
В доме тёплые водяные полы, газовый котёл и радиаторы отопления
В пешем доступе остановки общественного транспорта, супермаркеты .
Через станицу протекает река Кочеты , шикарные виды и уловистая рыбалка всегда рядом !!!!
Арт.1016604313
Оставьте свой номер телефона, мы назначим время звонка и поможем принять решение