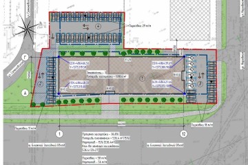
Участок коммерческого назначения 30 соток правильной формы, два фасада 66 метров и 42 метра на проезжую часть, находится срзау напротив большого строящегося жилого массива район ул. Кирилла Россинского Прикубанский район.
Один из самых активно развивающихся районов города. Рядом несколько новых современных жилых комплексов, коттеджные поселки и дорогой частный сектор. Остановка общественного транспорта, активный пешеходный и автомобильный трафик.
Подходит под постройку капитального сооружения, торгово-офисного помещения, торговые ряды, автомойка, ресторан, гостиница, медицинский или спортивный центр
Лучшее предложение, отличная цена, документы готовы к продаже. Звоните.
Арт.1009543476
Оставьте свой номер телефона, мы назначим время звонка и поможем принять решение