Земельный участок под ИЖС
Ленина, мкр. Карасунский внутригородской округ, ул. Огородная, 71
7 000 000 ₽
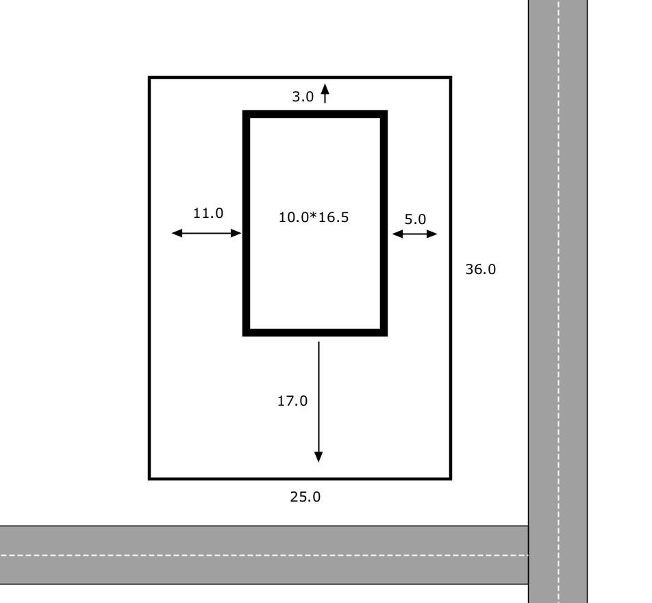
В продаже земельный участок 9,61 сотки, в центре х. Ленина.
Параметры участка: 36 метров фасад, 25 метров глубина участка.
Получено разрешение на строительство, имеется пятно застройки в 165 м2.
При покупке взимается комиссия агентства.
Звоните и купите участок своей мечты.

Оставьте свой номер телефона, мы назначим время звонка и поможем принять решение