Продается цокольное помещение с оборудование под пищевое производство в центре фестивального микрорайона. Изначально строилось как производство (промышленная независимая вытяжка, жиро уловитель, свой септик для сбора). Помещение выходит во двор дома, расположено внутри жилого массива.
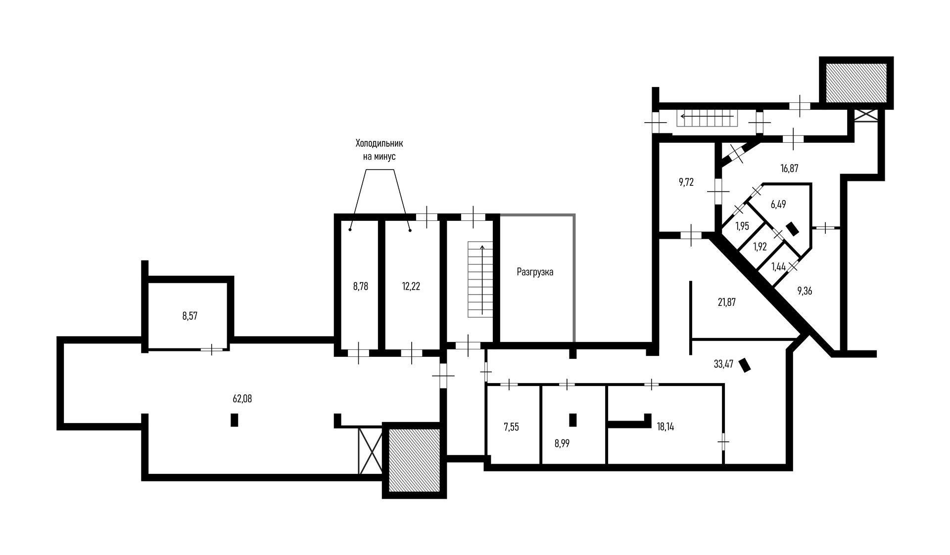
Площадь 230 кв.м.
Планировка кабинетная.
Две отдельные входные группы, окон нет.
Высота потолков: 4.0 м.
Электрическая мощность: 100 кВт.
Коммерческая вытяжка.
Коммуникации центральные.
Парковка стихийная во дворе.
Дополнительное подземное парковочное место площадью 20 м2 входит в стоимость для осуществления разгрузки – погрузки. Хорошая логистика для развоза продукции и приезда сотрудников. Соблюдены все потоки, два входа - для персонала и загрузки-разгрузки.
Без оплаты комиссии со стороны покупателя
Арт.1012451264
Оставьте свой номер телефона, мы назначим время звонка и поможем принять решение