Коммерция 103 м²
Краснодар, Прикубанский внутригородской округ, мкр. Достояние, ул. Григория Булгакова, 16
103 000 ₽
1 000 ₽/м²
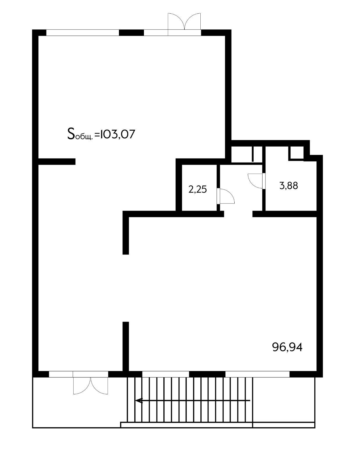
Сдается в аренду помещение в новом ЖК. Фасадное помещение.
- площадь 103 кв.м.;
- высота потолков 3,2 метра;
- широкий фасад;
- сквозная планировка.
Один из самых застраиваемых районов города. Новый современный ЖК, оснащенный всей необходимой инфраструктурой, социальными объектами. Рядом расположена прогулочная зона, школа, садик. ТЦ перед Комплексом дополнительно привлекает жильцов в комплекс.
Без комиссии от Арендатора!
Арт.1013877993
Оставьте свой номер телефона, мы назначим время звонка и поможем принять решение