Без комиссий!
Аренда помещения свободного назначения 107 м² в Краснодаре, Юбилейный микрорайон
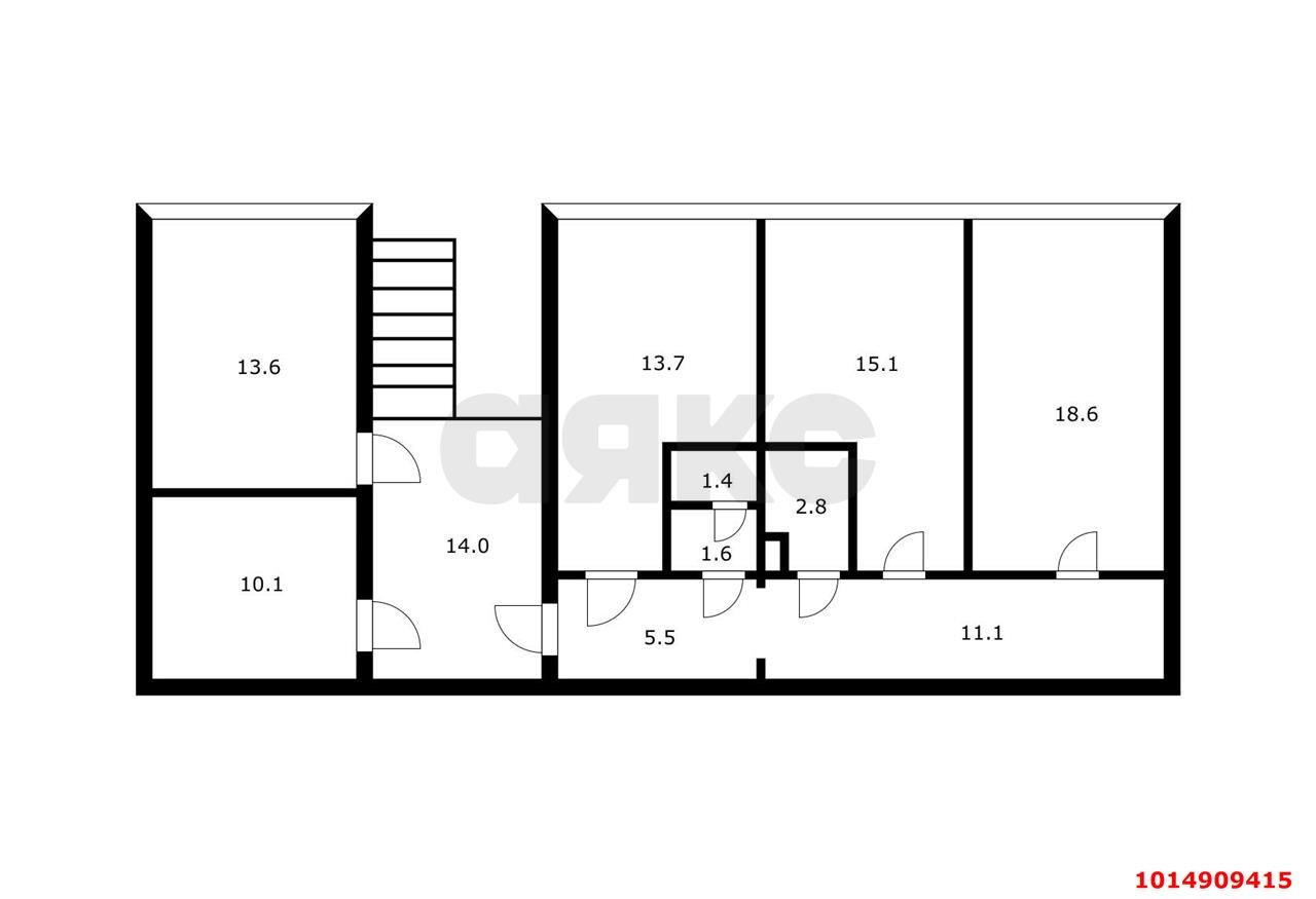
Предлагается в аренду просторное помещение площадью 107 кв.м с кабинетной системой и четырьмя большими витринными окнами. Ранее успешно использовалось как клиника, что делает его идеальным вариантом для медицинского центра, поликлиники, стоматологии или других направлений в сфере здоровья.
Основные характеристики:
- Общая площадь: 107 кв.м
- Кабинетная система: несколько отдельных комнат для комфортной организации работы
- Большие витринные окна: 4 большие окна обеспечивают отличное естественное освещение и видимость с улицы
- Мощность электросети: 10 кВт — достаточно для медицинского оборудования или другого профессионального использования
- Высота потолков: 3 метра — создаёт ощущение простора и удобства
- Расположение: Юбилейный микрорайон, г. Краснодар — удобная транспортная доступность и развитая инфраструктура района
Почему именно это помещение:
- Готово к использованию под медицинские или иные услуги без необходимости капитального ремонта
- Комфортные кабинеты для приёма клиентов, персонала и хранения материалов
- Высокая проходимость и видимость благодаря витринным окнам
- Электрическая мощность позволяет подключить современное оборудование
Данное помещение отлично подойдёт под:
- Медицинскую клинику, поликлинику, стоматологию и косметологический кабинет
- Офис свободного назначения, центр услуг, учебный или творческий центр
- Торговую точку с кабинетным делением
Не упустите возможность арендовать удобное и функциональное помещение в одном из лучших районов Краснодара!
Арт.1014909415
Оставьте свой номер телефона, мы назначим время звонка и поможем принять решение