Предлагается к продаже прибыльное коммерческое помещение с надёжным арендатором и стабильным ежемесячным доходом.
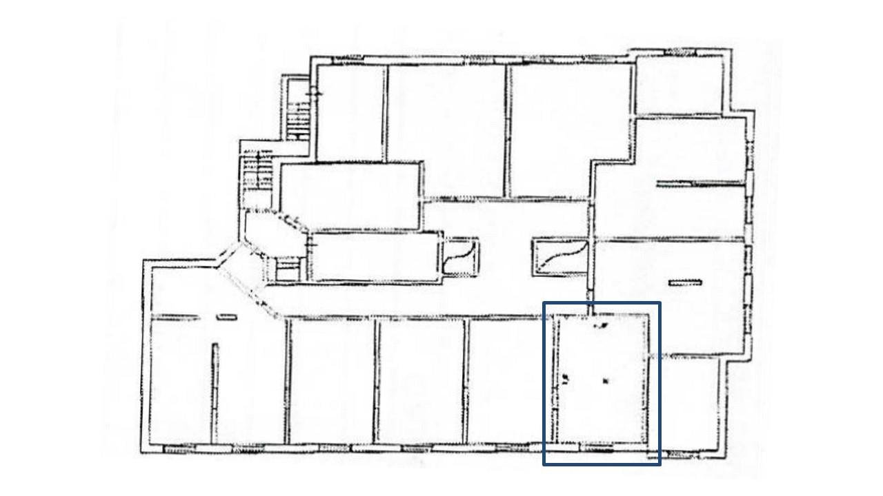
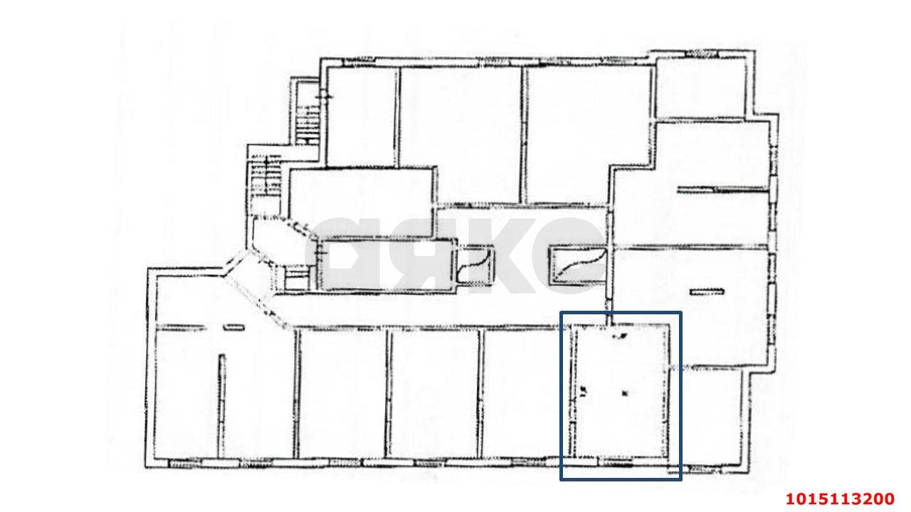
Объект расположен в цокольном этаже жилого дома, имеет отдельный вход и выполнен в современном дизайне.
Характеристики помещения:
Площадь: 31,4 м²
Высота потолков: 2,5 м
Электрическая мощность: 5 кВт
Помещение полностью оборудовано и не требует вложений.
Средний ежемесячный доход: 50–60 тыс. руб.
Предусмотрено полное сопровождение бизнеса и передача всей необходимой информации для продолжения деятельности.
Возможна комплексная продажа трёх помещений — идеальное решение для инвестора, желающего сформировать устойчивый доходный портфель недвижимости.

Оставьте свой номер телефона, мы назначим время звонка и поможем принять решение